Liberkeys vous propose, au c?ur de Reims, ce bel appartement de 66 m² Carrez parfaitement agencé, idéal pour une vie citadine et confortable. Situé dans une résidence bien entretenue et rénové en 2024, ce bien séduira les couples, primo-accédants ou familles à la recherche d'un environnement dynamique, tout en offrant calme et praticité.
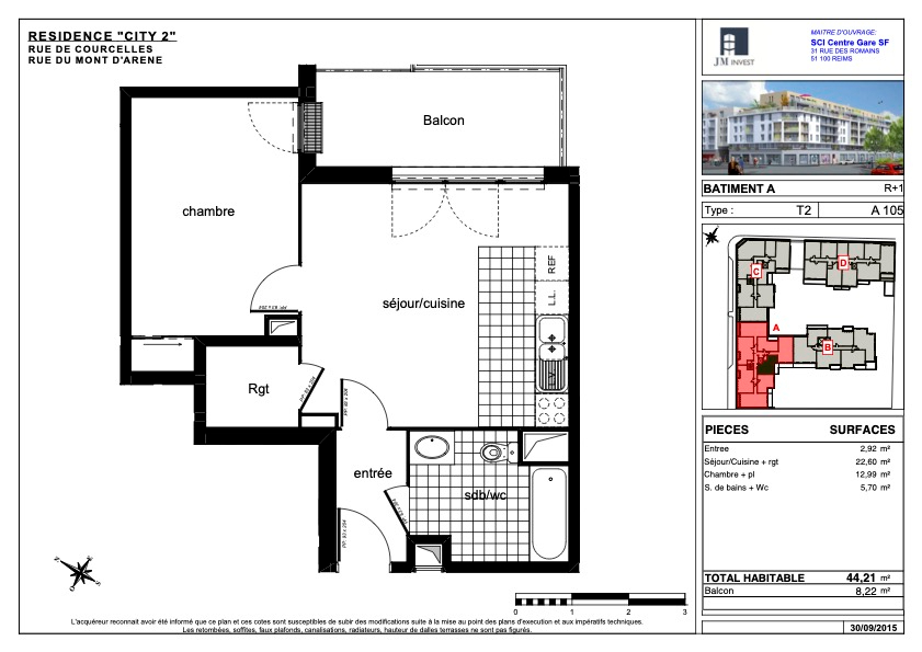
L'appartement s'ouvre sur une pièce de vie lumineuse de 18 m2 donnant accès à un balcon, parfait pour profiter des rayons du soleil en fin de journée ou partager un repas en plein air. La cuisine attenante est fonctionnelle et modulable selon vos envies. Côté nuit, deux chambres spacieuses offrent de nombreuses possibilités d'aménagement ( agencement généré par IA ), complétées par une salle de bains, des toilettes séparées et un cellier pratique. Un parking privatif facilite le quotidien, tout comme la cave idéale pour optimiser votre rangement.
Une cave de 10 m2 vient compléter l'offre de cet appartement .
Retrouvez tous les essentiels : écoles, commerces, tramway accès rapide à l'autoroute .
Côté pratique : charges de copropriété de 400 € par trimestre, taxe foncière de 1 498 €.
Montant estimé des dépenses annuelles d'énergie pour un usage standard : entre 550 € et 800 € par an. Prix moyens des énergies indexés sur l'année 2023 (abonnements compris).
Ce bien vous plaît ? sur le site de Liberkeys ou contactez directement votre conseiller. Ozérée Kevin, agent commercial immatriculé au RSAC de sous le numéro 991 905 613. Référence annonce : DOM26268. Date de réalisation du diagnostic : 20/10/2025. Les honoraires sont à la charge du vendeur.
66 m²
2 848 €
18 m²
4
2
1
1
1
3 sur 8
1977
Est
Ouest
Oui
Oui
Consommations énergétiques
Logement économe
106
Logement énergivore (kWhEP/m2/an)
Émissions de gaz à effet de serre
Faible émission de GES
22
Forte émission de GES(kgeqCO2/m2/an)
Contact Kevin Ozérée
Contacter gratuitement à l'aide du formulaire ci-dessous.