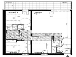
À proximité immédiate du tramway et de l'ensemble des commodités, au sein d'une résidence intimiste de 10 lots, venez découvrir ce bel appartement 4 pièces de 89 m², situé au premier étage, offrant un cadre de vie pratique et confortable.
L'entrée, équipée d'un placard, dessert un WC indépendant, puis mène vers une spacieuse pièce de vie, pensée comme un espace convivial, largement ouverte sur un bel extérieur de plus de 16 m², idéal pour profiter d'un prolongement vers l'extérieur. L'espace nuit se compose d'une suite parentale avec sa salle d'eau, de deux chambres avec placards, ainsi que d'une salle de bains, offrant une organisation fonctionnelle pour le quotidien. Vous trouverez également un cellier au niveau de l'entrée de l'appartement.
Deux places de parking couvertes et sécurisées complètent ce bien en SUS.
Un appartement aux volumes équilibrés, alliant confort, fonctionnalité et emplacement recherché.
Honoraires à la charge du vendeur. Dans une copropriété de 10 lots. Aucune procédure n'est en cours. DPE vierge. Les informations sur les risques auxquels ce bien est exposé sont disponibles sur le site Géorisques : georisques.gouv.fr.
89 m²
3 910 €
33.00 m²
4
3
1
1
1 (séparé)
1 sur 2
Oui
Oui
2
1
Oui
Oui (10 lots)
Contact Mathieu AUBERT
Contacter gratuitement à l'aide du formulaire ci-dessous.