Appartement 4 pièces de 93 m2 au coeur de la verdure
Neuilly-sur-Marne 93330
0
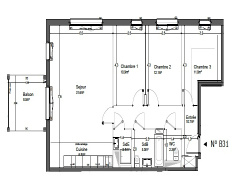
Découvrez cet appartement familial de 92,5m2 alliant luminosité, espace et élégance contemporaine. Idéalement situé au milieu de la verdure, il vous séduira par son agencement optimisé, ses prestations soignées: - Séjour/cuisine ouverte de 38m2, avec une cuisine équipée - 3 chambres spacieuses (10,9 m2, 12,1 m2 et 11 m2), avec des rangements intégrés - Salle de bain moderne avec baignoire et WC indépendant, plus une salle d'eau pratique. - Balcon de 8,5 m2, exposé pour profiter du calme et de la verdure environnante. Double orientation pour une luminosité naturelle toute la journée. À seulement quelques minutes des commerces, écoles et transports (RER A, E et Transilien P), Profitez aussi de la proximité du parc départemental de la Haute-Île, des bords de Marne, et des équipements de l'écoquartier Maison Blanche (crèche, groupes scolaires, maison médicale, commerces). Ne laissez pas passer cette opportunité ! Frais de notaire réduits Pas de frais d'agence Photos non contractuelles
93 m²
3 731 €
8 m²
35 m²
4
3
1
1
2
3
Sud
Ouest
1 (8 m²)
2
1
Consommations énergétiques
Logement économe
71
Logement énergivore (kWhEP/m2/an)
Émissions de gaz à effet de serre
Faible émission de GES
10
Forte émission de GES(kgeqCO2/m2/an)
Contact AMAR Denis
Contacter gratuitement à l'aide du formulaire ci-dessous.