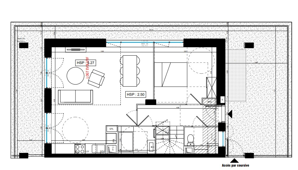
A Vénissieux, idéalement située face au parc Clos Layat, et à deux pas de toutes commodités, je vous propose à la vente ce très bel appartement de 86,68m² avec sa Terrasse aux dernières normes comprenant : Une entrée, un séjour avec cuisine ouverte donnant sur la grande Terrasse de 63,96m² , trois chambres, une salle de bain, une buanderie et un WC. L'appartement est vendu avec un garage en sous-sol Isolation phonique et thermique renforcés, faibles charges. Bâtiment basse consommation Merci de contacter votre conseiller Grégory pour plus d'informations Visuel non contractuel. Copropriété de 56 lots (Pas de procédure en cours). Charges annuelles : 1200 euros.