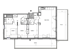
A Saint DIDIER au Mont D'OR, je vous propose à la vente ce très bel appartement de 92m² avec 2 Terrasses dans une prochaine résidence de standing aux dernières normes comprenant : Une entrée, un séjour avec cuisine ouverte donnant sur une terrasse de 22,25m² et une autre de 25,78m². Dans le coin nuit, trois chambres, une salle de bain, une salle d'eau, un et un WC séparé. L'appartement est vendu avec un garage en sous-sol Résidence contemporaine aux très belles prestations intérieures Bâtiment basse consommation, faibles charges Visuel non contractuel Pour tout renseignement, vous pouvez me contacter, Je serai ravi d'échanger et vous aider à concrétiser votre beau projet Merci de contacter votre conseiller Grégory pour plus d'informations Copropriété de 47 lots - dont 47 lots habitation. Charges annuelles : 1800 euros.