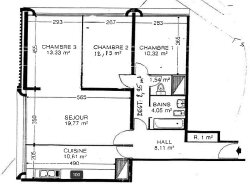
Appartement 4 pièces en bon état situé à proximité du Métro Olympiade, d'une surface de 84m²(loi Carrez) au 20ème étages sans vis-a-vis comprenant: une grande entrée avec plusieurs rangements ,double séjour baigné de lumières,cuisine US fonctionnelle et parfaitement agencée, trois chambres spacieuses sans vis-a-vis,une salle de bains et WC séparé. A cela vous bénéficierez d'une place de parking privative et d'une grande cave. Très belle prestation de l immeuble vous bénéficierez de services de gardiennage, système de télésurveillance 24/24 7/7 Chauffage et eau chaude collectifs. Appartement lumineux avec vue dégagée sur paris.
Les informations sur les risques auxquels ce bien est exposé sont disponibles sur le site Géorisques : www.georisques.gouv.fr
84 m²
8 119 €
4
3
20 sur 30
Consommations énergétiques
Logement économe
194
Logement énergivore (kWhEP/m2/an)
Émissions de gaz à effet de serre
Faible émission de GES
33
Forte émission de GES(kgeqCO2/m2/an)
Contact MODAI IMMO
Contacter gratuitement à l'aide du formulaire ci-dessous.