Appartement 4 pièces spacieux avec terrasse et jardin
Charly 69390
0
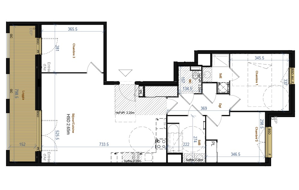
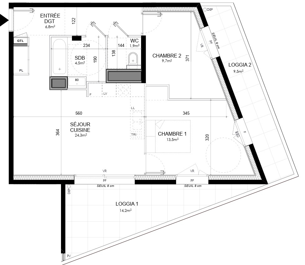
Votre agence SIA IMMOBILIER vous propose: Cet appartement est situé dans une résidence récente. Ce fabuleux 4 pièces de 83.12 m2 comprenant une entrée, un séjour cuisine donnant sur un balcon de 12.76.m2 exposé Nord Est, un espace nuit comprenant 3 chambres, une salle de bain, et un w.c. Appartement répondant au normes et labels de qualité RT2012/RE2020 encore sous garantie décennale pendant 10 ans sur toute la structure de l'immeuble. Acune procédure encours. Frais de notaire REDUIT
Transport : TCL
Copropriété de 48 lots sur plusieurs batiments de 3 étages (Pas de procédure en cours). Batiment basse consomation, faibles charges ! Charges annuelles : 2543 euros. Montant estimé des dépenses annuelles d'énergie de ce logement pour un usage standard 781EUR et 1057EUR. 01/01/2021 Les informations sur les risques auxquels ce bien est exposé sont disponible sur le site Géorisque: www.géorisques.gouv.fr Pan et informations disponible : Joingnable 7J/7.Contacter Barbara : 06 89 16 73 49. Photos non contractuelle Les informations sur les risques auxquels ce bien est exposé sont disponibles sur le site Géorisques : www.georisques.gouv.fr
75.69 m²
5 401 €
12 m²
32 m²
4
3
1
1
211 € / mois
2024
Sud
Est
1 (12 m²)
Oui
1
Oui
Oui
Consommations énergétiques
Logement économe
106
Logement énergivore (kWhEP/m2/an)
Émissions de gaz à effet de serre
Faible émission de GES
22
Forte émission de GES(kgeqCO2/m2/an)
Contact DIAS Barbara
Contacter gratuitement à l'aide du formulaire ci-dessous.