Cet appartement remarquable situé dans une magnifique résidence récente et sécurisé.
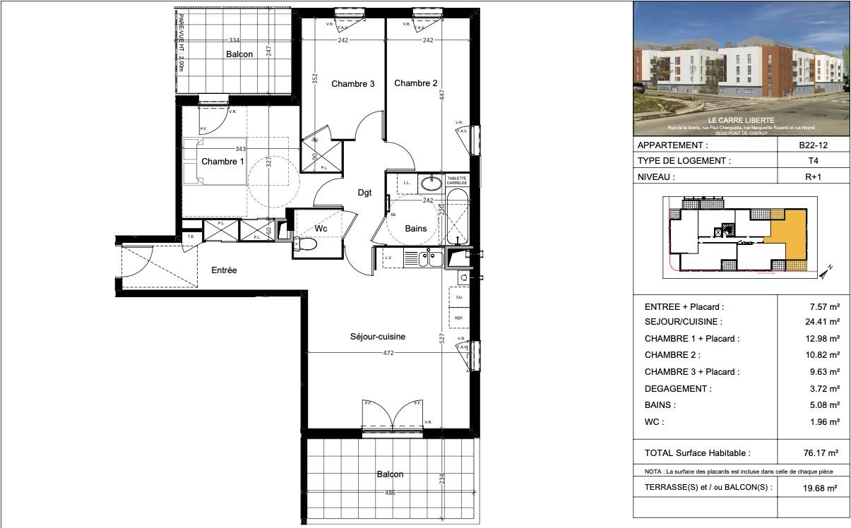
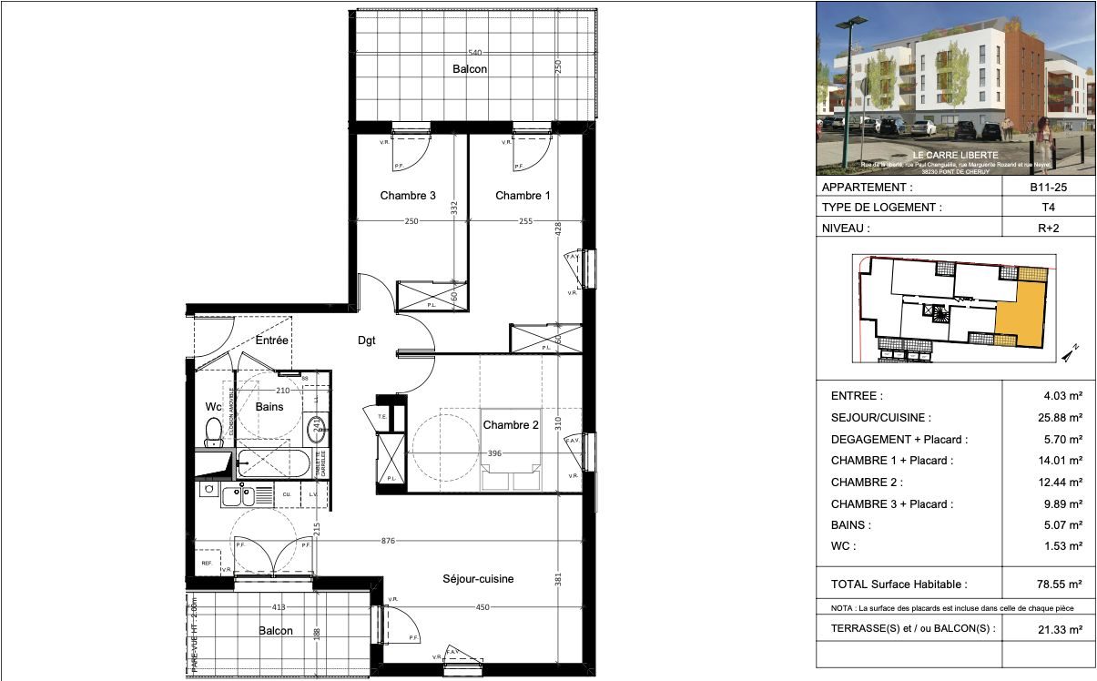
Ce fabuleux 4 pièces de 85 m2 comprenant une entrée, un fabuleux séjour cuisine donnant sur un balcon de 8.20 m2 exposé Nord. Un espace nuit comprenant 3 chambres, une salle de bain, une salle d'eau et un w.c Appartement répondant au normes et labels de qualité RT2012/RE2020 encore sous garantie décennale pendant 10 ans sur toute la structure de l'immeuble. Acune procédure encours. Frais de notaire REDUIT
Transport : TCL
Copropriété de 70 lots sur un batiments de 3 étages (Pas de procédure en cours). Batiment basse consomation, faibles charges ! Charges annuelles : 2856 euros. Montant estimé des dépenses annuelles d'énergie de ce logement pour un usage standard 781EUR et 1057EUR. 01/01/2021 Les informations sur les risques auxquels ce bien est exposé sont disponible sur le site Géorisque: www.géorisques.gouv.com Pan et informations disponible : Joingnable 7J/7.Contacter Barbara : 06 89 16 73 49. Photos non contractuelle !
Les informations sur les risques auxquels ce bien est exposé sont disponibles sur le site Géorisques : www.georisques.gouv.fr
85 m²
3 224 €
8 m²
31 m²
4
3
1
1
1
2 sur 3
238 € / mois
2025
Nord
1 (8 m²)
Oui
Oui
Oui
Consommations énergétiques
Logement économe
106
Logement énergivore (kWhEP/m2/an)
Émissions de gaz à effet de serre
Faible émission de GES
22
Forte émission de GES(kgeqCO2/m2/an)
Contact DIAS Barbara
Contacter gratuitement à l'aide du formulaire ci-dessous.