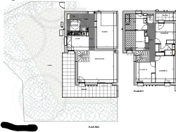
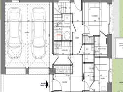
DCTA 5 PIECES ST NAZAIRE LES EYMES (38330) LIVRAISON JUIN 2025 SE RENSEIGNER POUR LES REMISES EN COURS LES IMAGES DE PUBLICITE NE SONT PAS CONTRACTUELLES. CPI92012021000000226 LOT B204 5 pièces 2 ème étage 123.50m2 ANNEXE 40.00m2 680?000 EUR PARKING INCLUS
Les Deux Alpes 38860 - 0
...Ce duplex inversé 98,81 m2 en surface carrez, entièrement rénové en 2016, offre des prestations...
Huez 38750 - 0
...Pour plus d'informations, contactez Mr AZZARFANI Nabil06-13-66-61-21 / n...