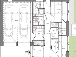
DCTA 5 PIECES ST NAZAIRE LES EYMES (38330) LIVRAISON JUIN 2025 SE RENSEIGNER POUR LES REMISES EN COURS LES IMAGES DE PUBLICITE NE SONT PAS CONTRACTUELLES. CPI92012021000000226 LOT B204 5 pièces 2 ème étage 123.50m2 ANNEXE 40.00m2 680?000 EUR PARKING INCLUS
Meylan 38240 - 0
...2 hectares avec gardien et piscine - Vaste appartement lumineux en étage d'une surface de 169 m²...
...Actuellement configuré en séjour double et 3 chambres, vous pouvez très facilement retrouver la...
Huez 38750 - 0
...Pour plus d'informations, contactez Mr AZZARFANI Nabil06-13-66-61-21 / n...