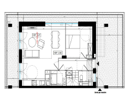
A Vénissieux, Située dans la ZAC Grand Parilly, au coeur du dynamique quartier de Parilly, et à deux pas de toutes commodités, je vous propose à la vente ce très bel appartement Duplex de 97m² avec sa Terrasse aux dernières normes comprenant : En bas, une entrée, un séjour avec cuisine ouverte donnant sur la Terrasse de 51m², une chambre, une salle d'eau et un WC. A l'étage, trois chambres et une salle d'eau. Isolation phonique et thermique renforcés, faibles charges. Bâtiment basse consommation Merci de contacter votre conseiller Grégory pour plus d'informations Un parking en sous-sol au prix de 15 000 euros en supplément. Visuel non contractuel. Copropriété de 177 lots (Pas de procédure en cours). Charges annuelles : 1400 euros.