Appartement 5 pièces Duplex Dernier etage Terrasses
Lyon 69005
0
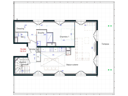
A LYON 5° au Point du Jour, je vous propose à la vente ce très beau duplex T5 situé en dernier etage de 138,20m² avec sa magnifique terrasse de 86,13 m² dans une prochaine résidence de standing aux dernières normes comprenant : Une entrée, un séjour avec cuisine ouverte donnant sur la terrasse de 86m², une suite parentale avec salle d'eau et un wc. A l'étage, 3 chambres avec salle d'eau et WC et une terrasse de 15m² Résidence contemporaine aux très belles prestations intérieures Bâtiment basse consommation, faibles charges Visuel non contractuel Merci de contacter votre conseiller Grégory pour plus d'informations Copropriété de 13 lots - dont 13 lots habitation. Charges annuelles : 2400 euros.