Appartement 81m2 avec exterieur de 19m2 - Tassin Centre
Tassin-la-Demi-Lune 69160
0
Honoraires à la charge du vendeur.
Appartemet T4 de 81m2 avec extérieur de 19m2 en plein centre de Tassin dans une résidence de standing sécurisée.
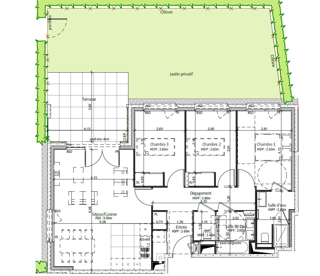
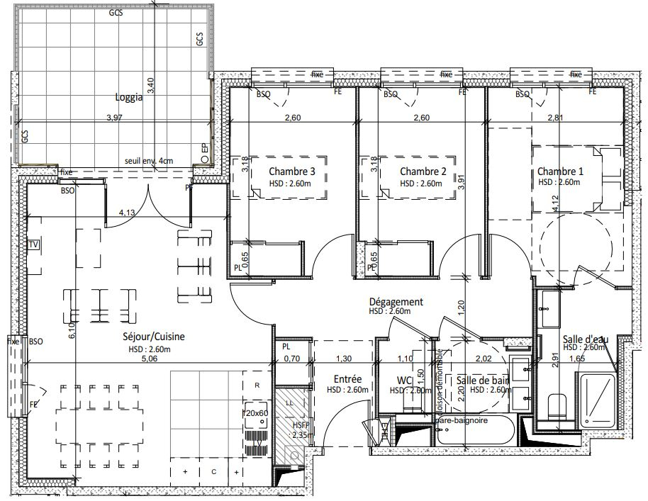
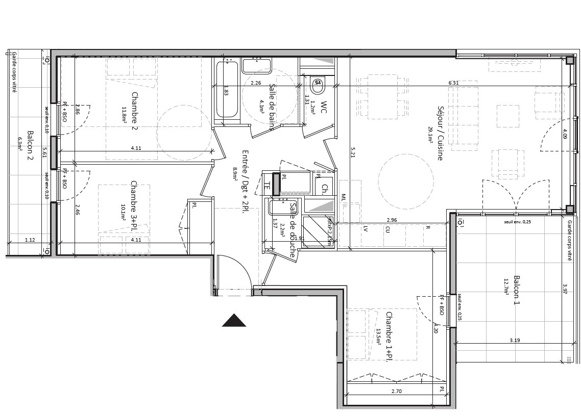
Les +: Hauteur sous plafond de 2,50 m Espace arboré Proximité immédiate de toutes les commodités 2 minutes à pied de l'horloge Parking double box en sous-sol Prix : 565 000 - Parking box double en SUS séjour cuisine de 30m2 WC séparé salle d''eau salle de bain 3 chambres avec placard (13,5m2,11,8m2 et 10,1m2) La résidence :toutes les commodités à proximité immédiate résidence sécurisée Aux portes de Lyon, Tassin-la-Demi-Lune bénéficie d'une qualité de vie exceptionnelle. Située dans l'ouest lyonnais, Tassin est une commune attractive et dynamique, prisée par les Lyonnais pour son authenticité et sa nature préservée. Tassin vous séduira par ses nombreux équipements publics, ses infrastructures sportives, ses établissements scolaires, sa vie associative et culturelle, mais aussi par son emblématique marché sur la Promenade des Tuileries. Nous contacter pour tout élément complémentaire : visite du bien, photos, détails, plans, prestations et autres. EUPORIA IMMOBILIER présent sur Paris & Lyon Carte professionnelle CPI 6901 2021 000 000 166 CCI Lyon Métropole Saint-Étienne Roanne. RCS Lyon 903 566 099.
Honoraires à la charge du vendeur. Dans une copropriété de 87 lots. Quote-part moyenne du budget prévisionnel 1 /an. Aucune procédure n'est en cours. Non soumis au DPE. Les informations sur les risques auxquels ce bien est exposé sont disponibles sur le site Géorisques : georisques.gouv.fr.
81 m²
6 975 €
19 m²
30 m²
6
3
1
1
1 (séparé)
2 sur 4
2 (19 m²)
2
Oui
Oui
Oui
Oui
Oui
Oui (87 lots)
Contact EUPORIA
Contacter gratuitement à l'aide du formulaire ci-dessous.