APPARTEMENT A CHARTRES 3 PIÈCES LUMINEUX AVEC STATIONNEMENT
Chartres 28000
0
Honoraires à la charge du vendeur.
APPARTEMENT 3 PIÈCES LUMINEUX AVEC STATIONNEMENT
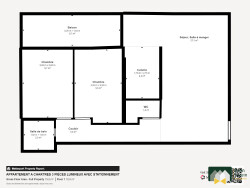
Bienvenue dans votre futur chez-vous ! Nous sommes ravis de vous présenter cette exclusivité un (T3), bénéficiant de notre pack visibilité. Profitez de notre visite virtuelle et de photos haute qualité pour découvrir cette belle opportunité à saisir, située dans une résidence construite en 2007, au 3ème étage sur 3 avec ascenseur, à Chartres.
DÉCOUVREZ L'INTÉRIEUR : -Un séjour lumineux -Une cuisine ouverte, aménagée et équipée -Deux chambres -WC indépendants -Une salle de bains moderne
CÔTÉ CONFORT : -Chauffage individuel -Fenêtres en PVC avec double vitrage -Appartement en excellent état -Lumineux -Ascenseur
L'EMPLACEMENT : -Bus à 5 minutes à pied -École élémentaire à 5 minutes à pied -École maternelle à 10 minutes à pied -Restaurants à 5 minutes à pied -Médecins généralistes à 10 minutes à pied -Crèche à 15 minutes à pied
N'hésitez pas à contacter votre agent au Noeud Pap' pour obtenir plus d'informations et organiser une visite de cet appartement à Chartres !
Honoraires à la charge du vendeur. Dans une copropriété de 77 lots. Quote-part moyenne du budget prévisionnel 1 424 /an. Procédure en cours : Procédure en cours : Action contentieuse expertise judiciaire programmée le 17/10/2024 Objet : infiltration (balcons, toiture, gouttières). à la charge du promoteur si expertise favorable. La procédure est donc active et suivie par le syndic.. Classe énergie C, Classe climat B Montant estimé des dépenses annuelles d'énergie pour un usage standard : entre 984.00 et 1332.00 sur les années 2021, 2022 et 2023 (abonnements compris). Les informations sur les risques auxquels ce bien est exposé sont disponibles sur le site Géorisques : georisques.gouv.fr.