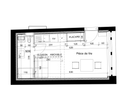
Bel appartement d'une superficie de 21,64 m2 situé à Deauville, offrant un cadre de vie recherché au coeur d'une station balnéaire prestigieuse. Station emblématique de la côte normande, Deauville cultive depuis plus de 150 ans un art de vivre élégant et intemporel. Bordée par la Manche, la ville est célèbre pour ses cabines de bains et sa mythique Promenade des Planches, héritage des Années Folles. Les vastes plages de sable fin, ornées de parasols colorés, invitent à la détente, aux bains de mer, aux balades à cheval ou encore à la pêche à pied. Le port et la marina accueillent les amateurs de navigation et de loisirs nautiques, offrant un environnement apaisant rythmé par les voiliers. Deauville est également reconnue pour son attachement au monde équestre, notamment grâce à Hippodrome de Deauville-La Touques, qui anime la ville tout au long de l'année avec des événements de renom. Les grands hôtels, le casino et les nombreuses infrastructures de qualité contribuent à la renommée internationale de la station, qui propose une offre variée de loisirs, de détente et une vie culturelle riche en événements, expositions et festivals. Prix : 226 000 EUR dont 3 % d'honoraires d'agence inclus. Les informations sur les risques auxquels ce bien est exposé sont disponibles sur le site Géorisques : www.georisques.gouv.fr