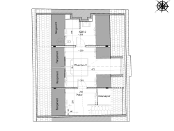
Bel appartement d'une superficie de 110 m2 situé à Deauville, offrant de beaux volumes et un cadre de vie recherché. Il se compose d'une entrée, d'un séjour lumineux de 24,40 m2, d'une cuisine fonctionnelle avec buanderie, de toilettes indépendantes, ainsi que d'un palier desservant deux chambres confortables et deux salles d'eau. Station balnéaire emblématique de la côte normande, Deauville séduit depuis plus de 150 ans par son art de vivre élégant et intemporel. Bordée par la Manche, la ville est réputée pour ses célèbres cabines de bains et sa mythique Promenade des Planches, véritable symbole des Années Folles. Les longues plages de sable fin, agrémentées de parasols colorés emblématiques, invitent à la détente, aux bains de mer, aux balades à cheval ou encore à la pêche à pied. Le port et la marina offrent un cadre agréable aux amateurs de navigation et de loisirs nautiques, tandis que l'atmosphère paisible est rythmée par le ballet des voiliers à l'horizon. Ville de prestige, Deauville est également reconnue pour sa passion du cheval, notamment grâce à Hippodrome de Deauville-La Touques, qui accueille tout au long de l'année de grands événements hippiques. Les grands hôtels, le casino et les nombreuses infrastructures de qualité participent à la renommée internationale de la station. Véritable lieu de villégiature, Deauville propose une offre variée de loisirs et de détente ainsi qu'un agenda culturel riche, composé d'expositions, de festivals et de spectacles. Prix : 979 000 EUR dont 3 % d'honoraires d'agence inclus. Les informations sur les risques auxquels ce bien est exposé sont disponibles sur le site Géorisques : www.georisques.gouv.fr