Honoraires à la charge de l'acquéreur (Prix hors honoraires : 0 euros).
Les charges de location sont prévisionnelles mensuelles avec régularisation annuelle.
La part des honoraires pour la réalisation de létat des lieux de ce bien est de 200 euros.
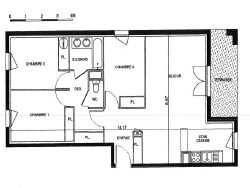
Forom Immobilier vous propose en exclusivité cet appartement T4 d'une surface d'environ 76.02 m² sur le secteur de Carcassonne.
Le bien sera libre de toute occupation à partir du 20 avril.
Devenez locataires de ce bel appartement qui dispose de trois belles chambres avec placard, d'un grand séjour/ cuisine d'environ 35,58 m², le tout ouvrant sur une charmante terrasse. Le bien dispose également de deux places de parking extérieur.
Le loyer est de 695 charges comprises soit : 640 de loyer hors charges et 55 de provision pour charges avec régularisation annuelle (la taxe pour ordures ménagères est en sus).
Honoraires à la charge du nouveau locataire : 700 TTC dont 200 pour la réalisation de l'état des lieux d'entrée.
Montant du dépôt de garantie : 640
Bien classé : C - diagnostics réalisés le 21/05/2024 - consommation moyenne annuelle : 890 et 1 240 (année de référence 2021)
Honoraires de 700 TTC à la charge du locataire comprenant 200 TTC pour l'état des lieux. Loyer de base 640 /mois. Provision sur charges 55 /mois, régularisation annuelle. Dépôt de garantie 640 . Classe énergie C, Classe climat A Montant moyen estimé des dépenses annuelles d'énergie pour un usage standard, établi à partir des prix de l'énergie de l'année 2021 : entre 890.00 et 1240.00 . Les informations sur les risques auxquels ce bien est exposé sont disponibles sur le site Géorisques : georisques.gouv.fr.
76.02 m²
4
3
1
1 (séparé)
700 %
55.00 € / mois
2
1
Oui
Consommations énergétiques
Logement économe
178
Logement énergivore (kWhEP/m2/an)
Émissions de gaz à effet de serre
Faible émission de GES
5
Forte émission de GES(kgeqCO2/m2/an)
Contact Forom® Immobilier
Contacter gratuitement à l'aide du formulaire ci-dessous.