Honoraires à la charge de l'acquéreur (Prix hors honoraires : 0 euros).
Les charges de location sont prévisionnelles mensuelles avec régularisation annuelle.
La part des honoraires pour la réalisation de létat des lieux de ce bien est de 218 euros.
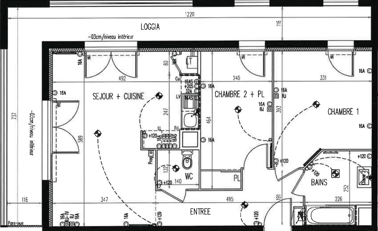
Découvrez ce magnifique duplex de 72 m², construit en 2006, qui allie élégance et fonctionnalité. Situé au premier étage, cet appartement non meublé est un véritable havre de paix, parfait pour ceux qui recherchent un espace spacieux et bien agencé. Imaginez-vous dans ce duplex lumineux, où chaque pièce a été conçue pour votre confort. Avec ses 3 pièces, dont 2 chambres spacieuses, une salle de bains moderne et un WC indépendant, cet appartement offre tout ce dont vous avez besoin pour une vie quotidienne agréable. La terrasse privée est l'endroit idéal pour profiter des moments de détente en plein air, tandis que le stationnement intérieur sécurisé vous garantit une tranquillité d'esprit. Le chauffage de ville assure une température constante et confortable tout au long de l'année. De plus, cet appartement est éligible à la fibre, vous permettant de profiter d'une connexion internet haut débit. Situé dans un quartier dynamique, vous trouverez à proximité plusieurs commodités : des bus à 5 minutes à pied, une crèche et une alimentation générale également à 5 minutes à pied. Plusieurs restaurants et médecins généralistes sont également accessibles en quelques minutes. À 15 minutes à pied, vous trouverez une maternelle, une élémentaire et un collège, rendant cet appartement idéal pour les familles. Ne manquez pas cette opportunité de vivre dans un cadre agréable et bien desservi. Contactez-nous dès aujourd'hui pour organiser une visite et découvrez par vous-même tout le potentiel de ce duplex exceptionnel.
Honoraires de 800 TTC à la charge du locataire comprenant 218 TTC pour l'état des lieux. Loyer de base 850 /mois. Provision sur charges 12 /mois, régularisation annuelle. Dépôt de garantie 850 . Classe énergie E, Classe climat E Montant moyen estimé des dépenses annuelles d'énergie pour un usage standard, établi à partir des prix de l'énergie de l'année 2021 : entre 1306.00 et 1768.00 . Les informations sur les risques auxquels ce bien est exposé sont disponibles sur le site Géorisques : georisques.gouv.fr.