Honoraires à la charge de l'acquéreur (Prix hors honoraires : 0 euros).
Les charges de location sont prévisionnelles mensuelles avec régularisation annuelle.
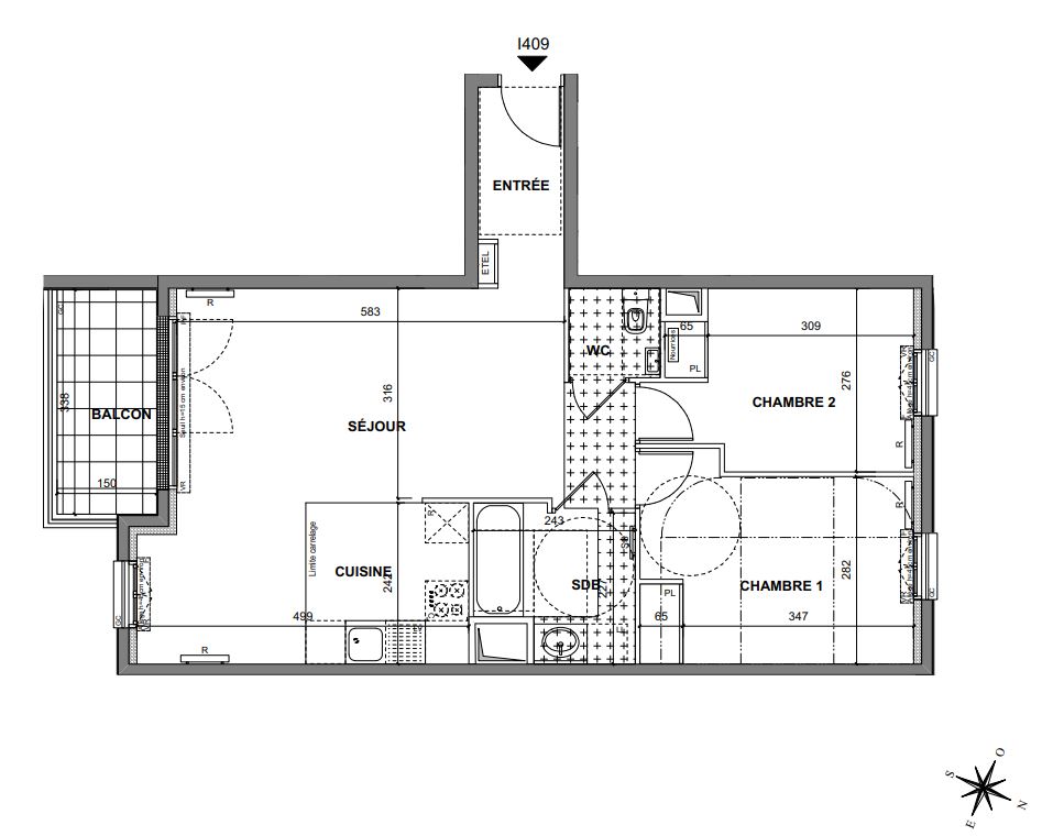
T3 se composant d'une entrée avec espace de rangement, une grande chambre avec placard, une deuxième chambre plus petite, un séjour avec cuisine aménagée, une salle de bains avec WC, une terrasse et un jardin privatif d'environ 20m2. Parquet au sol; chauffage et eau chaude collectifs. Transport et commerces à proximité ( RER B - 10 min à pied ou moins de 5 min en bus). Pour plus d'information et pour des visites, veuillez contacter Daria IANULI au 06 80 25 36 77.
Loyer de base 1205 /mois. Provision sur charges 145 /mois, régularisation annuelle. Classe énergie B, Classe climat B Montant moyen estimé des dépenses annuelles d'énergie pour un usage standard, établi à partir des prix de l'énergie de l'année 2021 : entre 470.00 et 635.00 . Les informations sur les risques auxquels ce bien est exposé sont disponibles sur le site Géorisques : georisques.gouv.fr.
58.21 m²
3
2
1
1
13/10/2025
145.00 € / mois
2025
Oui
1
Oui
Consommations énergétiques
Logement économe
74
Logement énergivore (kWhEP/m2/an)
Émissions de gaz à effet de serre
Faible émission de GES
6
Forte émission de GES(kgeqCO2/m2/an)
Contact Isabelle BELLOT
Contacter gratuitement à l'aide du formulaire ci-dessous.