Honoraires à la charge de l'acquéreur (Prix hors honoraires : 0 euros).
Les charges de location sont prévisionnelles mensuelles avec régularisation annuelle.
La part des honoraires pour la réalisation de létat des lieux de ce bien est de 195 euros.
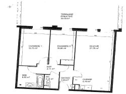
Dans résidence avec ascenseur, appartement de 65 m² situé au 1er étage avec terrasse de 29 m² et place de stationnement en intérieur. Entrée, pièce de vie avec coin cuisine, 2 chambres, salle de bains, wc séparés. Chauffage individuel au gaz. Disponible immédiatement. Revenus exigibles : 2 749 nets mensuels. Annonce rédigée et publiée par une agence immobilière juridiquement et financièrement indépendante, adhérente au réseau de Meilleur Conseil Immo - RCS Melun 821 414 43 - Garantie Financière : SOCAF, 25 avenue de Suffren, 75015 PARIS.
Honoraires de 715 TTC à la charge du locataire comprenant 195 TTC pour l'état des lieux. Loyer de base 832 /mois. Provision sur charges 130 /mois, régularisation annuelle. Dépôt de garantie 832 . Classe énergie C, Classe climat C Montant estimé des dépenses annuelles d'énergie pour un usage standard : entre 570.00 et 830.00 sur les années 2021, 2022 et 2023 (abonnements compris). Les informations sur les risques auxquels ce bien est exposé sont disponibles sur le site Géorisques : georisques.gouv.fr.
Votre conseiller IPSL IMMO : IPSL IMMO - Sebastien LEROY Carte T 7702 2016 000 010 402 RCP MMA ENTREPRISE