Honoraires à la charge de l'acquéreur (Prix hors honoraires : 0 euros).
Les charges de location sont prévisionnelles mensuelles avec régularisation annuelle.
La part des honoraires pour la réalisation de létat des lieux de ce bien est de 144.00 euros.
Bintz Immobilier vous propose à la location ce 2 pièce dans une résidence récente (2021) au coeur du quartier calme de Cronenbourg.
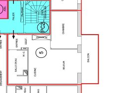
Situé au 2ème étage avec ascenseur, il se compose comme suit : une entrée, une grande cuisine ouverte sur le séjour, une chambre donnant a un accès terrasse, une salle de bain avec WC et une terrasse vue cour. La cuisine est entièrement aménagée et équipée.
Le chauffage et l'eau chaude sont collectif (chauffage au sol). Seul l'électricité reste à votre charge!
N'hésitez pas à nous contacter pour visiter cet appartement !
Honoraires de 624 TTC à la charge du locataire comprenant 144 TTC pour l'état des lieux. Loyer de base 810.00 /mois. Provision sur charges 120 /mois, régularisation annuelle. Dépôt de garantie 810 . Classe énergie C, Classe climat C Montant moyen estimé des dépenses annuelles d'énergie pour un usage standard, établi à partir des prix de l'énergie de l'année 2022 : entre 388.00 et 525.00 . Les informations sur les risques auxquels ce bien est exposé sont disponibles sur le site Géorisques : georisques.gouv.fr.
48 m²
2
1
2 sur 4
624 %
30/01/2026
120.00 € / mois
2022
1
Oui
1
Oui
Consommations énergétiques
Logement économe
71
Logement énergivore (kWhEP/m2/an)
Émissions de gaz à effet de serre
Faible émission de GES
14
Forte émission de GES(kgeqCO2/m2/an)
Contact Nolwenn BINTZ
Contacter gratuitement à l'aide du formulaire ci-dessous.