Honoraires à la charge de l'acquéreur et du vendeur (Prix hors honoraires : 0 euros).
Les charges de location sont prévisionnelles mensuelles avec régularisation annuelle.
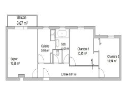
Tassin, secteur Horloge, au dernier étage d'une copropriété arborée et sécurisée, bel appartement de type trois pièces d'une superficie de 58 m² comprenant : hall, séjour lumineux donnant sur balcon, cuisine meublée, deux chambres avec placards, salle de bains, WC. Chauffage collectif, double vitrage. Cave. Stationnement libre dans la résidence. Proche de toutes commodités et accès autoroutiers. A voir absolument! Loyer : 722,59 + 165,00 de provision sur charges (chauffage + eau). Dépôt de garantie : 672,59 . Honoraires à la charge du locataire 461.30 TTC. Libre le de suite
Honoraires de 461,30 TTC à la charge du locataire. Loyer de base 722.59 /mois. Provision sur charges 165 /mois, régularisation annuelle. Dépôt de garantie 722,59 . Classe énergie D, Classe climat D Montant estimé des dépenses annuelles d'énergie pour un usage standard : entre 1350.00 et 1880.00 sur les années 2021, 2022 et 2023 (abonnements compris). Les informations sur les risques auxquels ce bien est exposé sont disponibles sur le site Géorisques : georisques.gouv.fr.
58 m²
4.27 m²
3
2
1
1
8 sur 8
461.3 %
04/08/2025
165.00 € / mois
1970
1 (4.27 m²)
Oui
Oui
Oui
Consommations énergétiques
Logement économe
248
Logement énergivore (kWhEP/m2/an)
Émissions de gaz à effet de serre
Faible émission de GES
47
Forte émission de GES(kgeqCO2/m2/an)
Contact Cartimo-Lyon
Contacter gratuitement à l'aide du formulaire ci-dessous.