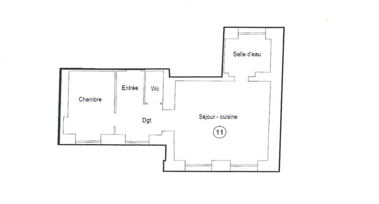
Situé au sein du parc Jourdain à Altkirch, cet appartement offre un cadre de vie agréable, au calme, dans un environnement résidentiel recherché. Il se compose d'une entrée avec dégagement, d'une cuisine semi-ouverte sur un salon-séjour lumineux, avec accès direct à une belle terrasse d'environ 16 m², idéale pour profiter des beaux jours. L'espace nuit comprend une chambre, une salle de bain ainsi qu'un WC séparé. Le bien dispose également d'une cave et d'une place de stationnement privative, apportant un confort supplémentaire au quotidien. Les charges de copropriété restent maîtrisées, ce qui constitue un véritable atout. L'appartement est globalement en bon état d'entretien, mais nécessitera un rafraîchissement pour être remis au goût du jour. Une fissure est actuellement visible sur le carrelage du séjour, sans incidence structurelle. Ce bien conviendra aussi bien à un premier achat qu'à un investissement locatif, grâce à sa configuration fonctionnelle et ses extérieurs appréciés.
Honoraires à la charge du vendeur. Dans une copropriété de 14 lots. Quote-part moyenne du budget prévisionnel 1 026 /an. Aucune procédure n'est en cours. Classe énergie D, Classe climat D. Les informations sur les risques auxquels ce bien est exposé sont disponibles sur le site Géorisques : georisques.gouv.fr.
Votre conseiller Immobilière de la Plaine d'Alsace : Gérant - Marc Cassildé
58.4 m²
2 534 €
2
1
1
1 (séparé)
2002
1
1
Oui (14 lots)
Consommations énergétiques
Logement économe
164
Logement énergivore (kWhEP/m2/an)
Émissions de gaz à effet de serre
Faible émission de GES
33
Forte émission de GES(kgeqCO2/m2/an)
Contact Ariane Zagula
Contacter gratuitement à l'aide du formulaire ci-dessous.