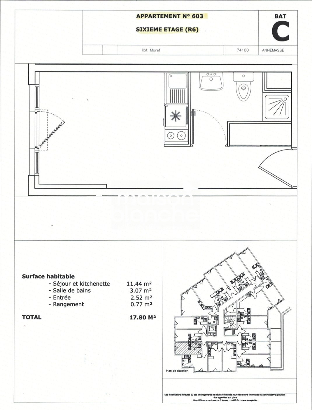
Le bien : Un studio situé au 2ème étage composé de : kitchenette, salle de bains, water-closet, une pièce avec placard. En supplément, un parking extérieur.
La résidence : Résidence Etudiante - Les Estudines - Annecy Pont Neuf située au 8 Rue du Rond Point Annecy 74960 À 5 min du centre d'Annecy, Les Estudines Pont Neuf propose studios (jusqu'à 26 m²) et T2 (jusqu'à 47 m²) meublés, proche IPAC, ESOAA, lycées. Gare et bus à pied. Entretien soigné, emplacement stratégique, idéal pour un investissement locatif serein.
Gestion et sécurité locative : Le bail commercial en cours est confié à Les Estudines (Reside Etudes), gestionnaire reconnu, qui assure le versement des loyers et la gestion locative de la résidence.
Fiscalité avantageuse : Statut LMNP (Loueur Meublé Non Professionnel) : possibilité d'amortissement et d'optimisation fiscale, revenus locatifs peu ou pas imposés selon régime.
Atouts de ce bien : - Idéal pour un premier investissement ou un placement patrimonial. - Le bien est vendu loué, géré et entretenu, vous n'avez donc rien à gérer au quotidien. - Alternative sécurisée aux placements financiers classiques. - Gestionnaire professionnel : Les Estudines (Reside Etudes).
*Rentabilité nette = (Loyer annuel Charges de copropriété Taxe foncière) / Prix du bien.*
Contactez-nous dès maintenant pour obtenir plus d'informations, recevoir le dossier complet ou organiser une visite.
Nous accompagnons chaque investisseur avec la même exigence, qu'il s'agisse d'un premier projet ou d'une stratégie patrimoniale confirmée.
Honoraires à la charge du vendeur. Dans une copropriété de 86 lots. Aucune procédure n'est en cours. Classe énergie D, Classe climat B Montant moyen estimé des dépenses annuelles d'énergie pour un usage standard, établi à partir des prix de l'énergie de l'année 2025 : entre 134.00 et 173.00 . Les informations sur les risques auxquels ce bien est exposé sont disponibles sur le site Géorisques : georisques.gouv.fr.
19.8 m²
4 394 €
1
Oui
1
Oui (86 lots)
Consommations énergétiques
Logement économe
240
Logement énergivore (kWhEP/m2/an)
Émissions de gaz à effet de serre
Faible émission de GES
9
Forte émission de GES(kgeqCO2/m2/an)
Contact Thomas Belaud
Contacter gratuitement à l'aide du formulaire ci-dessous.