Vous serez installé au coeur d'un quartier bénéficiant de l'ensemble des besoins que vous recherchez: commerces, services, transports en commun (tramway, bus, vélos ), espaces verts, écoles, équipements sportifs
À quelques minutes de l'hyper-centre de Bordeaux venez profiter d'un emplacement privilégié.
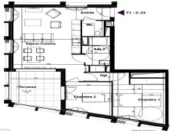
Cet appartement de 65,29m2 type 3 a été pensé pour laisser entrer un maximum de luminosité, il bénéficie de trois expositions dont sa terrasse sud-ouest.
Il se compose d'un vaste séjour/cuisine de 28.72m2 avec un accès direct sur l'extérieur de 12.92m2. Coté nuit deux chambres, une salle d'eau, un wc indépendant.
Une place de parking en sus complète le bien.
Pour plus d'informations merci de nous contacter.
- Frais de Notaire réduit - Tva 5.5% - PTZ possible - Garanties - RT 2012 - HQE -
VOTRE NOUVEL APPARTEMENT AU COEUR DE BORDEAUX
Honoraires à la charge du vendeur. Dans une copropriété de 21 lots. Aucune procédure n'est en cours. Non soumis au DPE. Les informations sur les risques auxquels ce bien est exposé sont disponibles sur le site Géorisques : georisques.gouv.fr.
Votre conseiller RH Patrimoine : Gérant associé - Philippe HERVE Carte T CPI 3301 2018 000 029 220
65.29 m²
3 829 €
29 m²
3
2
1
1 (séparé)
6 sur 7
Oui
1
1
Oui
Oui
Oui (21 lots)
Contact Philippe HERVE
Contacter gratuitement à l'aide du formulaire ci-dessous.