Dernière disponibilité, T3 + parking Grande réception 30m2 , 2 Ch, terrasse Résidence de standing RT 2012, sans travaux à prévoir. Appartements lumineux ouverts vers l'extérieur
Chaudière individuelle gaz, serrures 3 points, double vitrage isolation thermique et phonique, volets roulants électrique, domotique, accès sécurisé, local à vélo et jardin partagé,.. Proximité Collège, rue piétonne, cinéma, bibliothèque et restaurants. Gare pour Lyon et Grenoble direct.
Frais de notaire réduits , garantie décennale et biennale, frais chauffage réduits. Eligible au PTZ.
Honoraires à la charge du vendeur. Dans une copropriété de 24 lots. Aucune procédure n'est en cours. Classe énergie C, Classe climat C Montant moyen estimé des dépenses annuelles d'énergie pour un usage standard, établi à partir des prix de l'énergie de l'année 2022 : entre 660.00 et 660.00 . Les informations sur les risques auxquels ce bien est exposé sont disponibles sur le site Géorisques : georisques.gouv.fr.
Votre conseiller Mazaline Immo : Directrice d'Agence - Catherine Giroud Carte T CPI38022023000000003
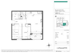
60.37 m²
4 009 €
31 m²
3
2
1
1 (séparé)
2025
Est
Oui
1
Oui (24 lots)
Consommations énergétiques
Logement économe
112
Logement énergivore (kWhEP/m2/an)
Émissions de gaz à effet de serre
Faible émission de GES
20
Forte émission de GES(kgeqCO2/m2/an)
Contact Catherine Giroud
Contacter gratuitement à l'aide du formulaire ci-dessous.