Honoraires à la charge de l'acquéreur (Prix hors honoraires : 269025 euros).
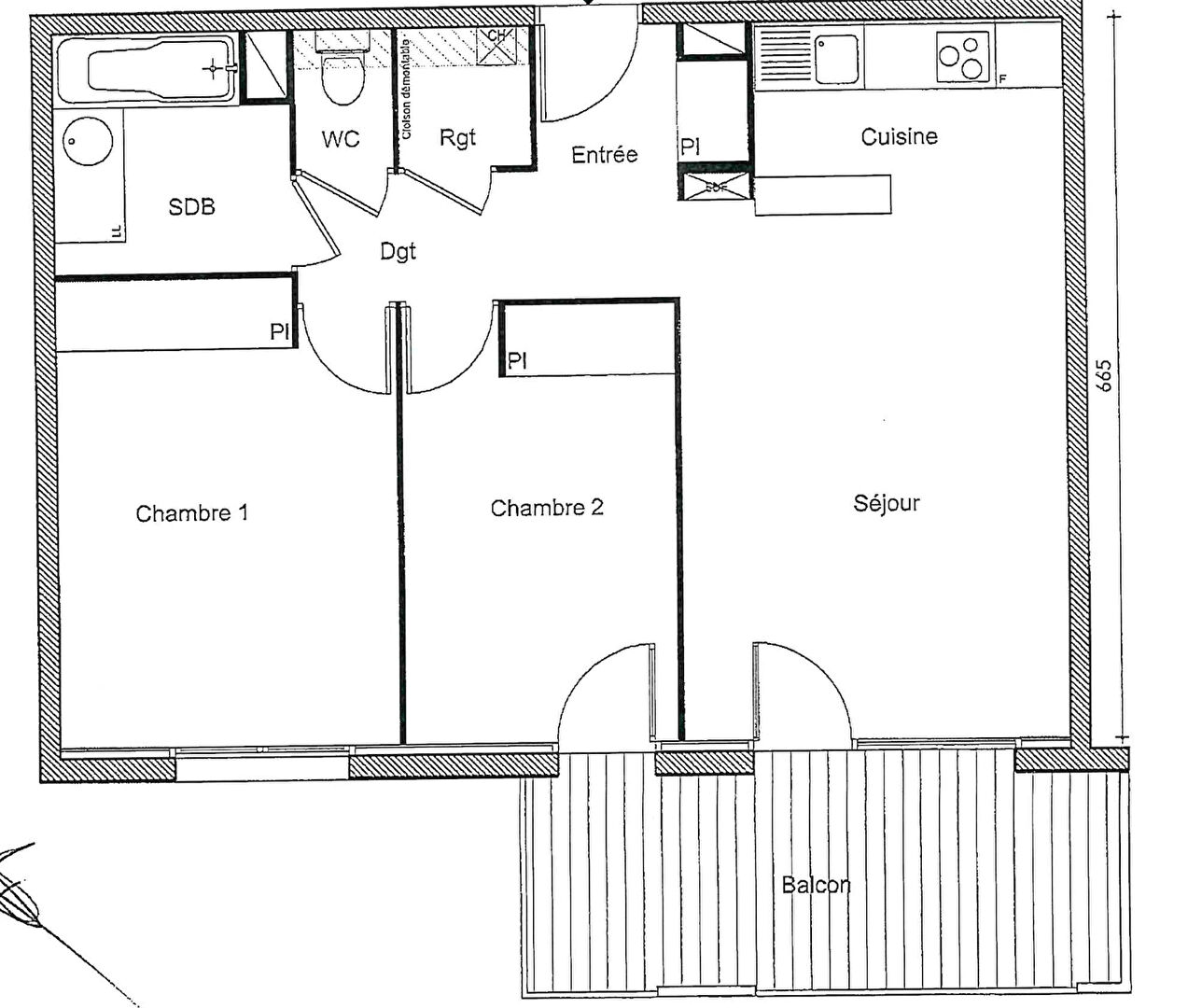
Découvrez ce magnifique appartement T4 de 70 m², un véritable havre de paix en plein centre-ville. Avec ses 3 pièces spacieuses, dont 2 chambres lumineuses, cet appartement est idéal pour une famille ou pour ceux qui aiment recevoir. La salle d'eau moderne et les WC séparés ajoutent une touche de confort supplémentaire.
Imaginez-vous dans ce cadre chaleureux, où chaque pièce a été pensée pour votre bien-être. La cuisine ouverte sur le salon permet de profiter de moments conviviaux, tandis que les chambres, baignées de lumière naturelle, offrent un havre de tranquillité. Les finitions soignées et les matériaux de qualité rendent cet appartement non seulement esthétique, mais aussi durable.
Situé à proximité de toutes les commodités, cet appartement est à seulement 5 minutes à pied des arrêts de bus et à 10 minutes en voiture des tramways. Vous trouverez également plusieurs crèches, une maternelle, un collège, et une école élémentaire à proximité, ainsi que des restaurants, des magasins d'alimentation générale, et des médecins généralistes. Un hôpital est accessible en 10 minutes en voiture.
Ne manquez pas cette opportunité de vivre dans un appartement spacieux et bien situé. Contactez-nous dès maintenant pour une visite et laissez-vous séduire par ce bijou immobilier.
70 m²
3 843 €
3
2
1
1
Oui (20 lots)
Contact Alan Rubal
Contacter gratuitement à l'aide du formulaire ci-dessous.