Craponne, au 109 voie romaine, résidence fermée de 2017, superbe duplex 105m² utile.
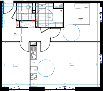
Dans un esprit pavillonnaire, venez découvrir ce duplex au premier et dernier étage, vendu avec 2 parkings en surface ainsi qu'une cave. Au premier étage, vous accèderez à une pièce de vie de 27 m2 avec cuisine US sur terrasse, une buanderie avec WC. A l'étage, 2 chambres + bureau, SDB + WC indépendant. Un produit récent et rare sur le secteur, bonne performance énergétique .
Charges annuelles 1090 soit 91 mensuels (eau froide + entretien chaudière inclus). Le prix de ce confort est 235 000, honoraires à la chargeur vendeur + grand garage fermé d'une valeur de 25 000.
Bien soumis au régime de la copropriété : 156 lots (dont 106 stationnements). Pas de procédure en cours. DPE B(87kwh/m2/an) et gaz effet de serre C(20kg co2/m2/an). Confiance Immobiler vous accompagne dans tous vos projets (estimation, vente, défiscalisation immobilière). Dossier suivi par Karl GUDELEKIAN agissant sous statut d'agent commercial,ADC69012023000000123 barème d'honoraires (se reporter au site de confiance immobilier). Agence Transaction 04.37.43.41.31
Honoraires à la charge du vendeur. Dans une copropriété de 156 lots. Aucune procédure n'est en cours. Classe énergie C, Classe climat C Montant estimé des dépenses annuelles d'énergie pour un usage standard : entre 890.00 et 1490.00 sur les années 2021, 2022 et 2023 (abonnements compris). Les informations sur les risques auxquels ce bien est exposé sont disponibles sur le site Géorisques : georisques.gouv.fr.