Honoraires à la charge de l'acquéreur (Prix hors honoraires : 63000 euros).
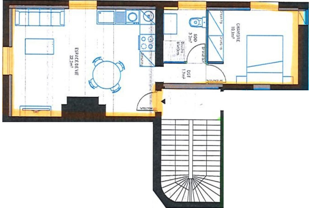
Situé au 4? étage d'un immeuble calme et bien entretenu, ce bel appartement en duplex de 56 m² vous séduira par son charme et sa luminosité. En plein centre de Dieppe, vous profiterez de la proximité immédiate des commerces, des transports, du port et de la plage. L'appartement se compose d'un agréable séjour baigné de lumière, d'une cuisine fonctionnelle, de deux chambres confortables et d'une salle de bain bien agencée. Son agencement en duplex offre un véritable espace de vie convivial et chaleureux. Idéal pour un investisseur, ce bien est vendu loué : 540 par mois, avec 20 de charges mensuelles. Disponible dès maintenant, ce bien rare dans le secteur est à visiter sans tarder !
Honoraires inclus de 11.11% TTC à la charge de l'acquéreur. Prix hors honoraires 63 000 . Dans une copropriété de 9 lots. Aucune procédure n'est en cours. Classe énergie E, Classe climat B Montant moyen estimé des dépenses annuelles d'énergie pour un usage standard, établi à partir des prix de l'énergie de l'année 2025 : entre 1104.00 et 1494.00 . Les informations sur les risques auxquels ce bien est exposé sont disponibles sur le site Géorisques : georisques.gouv.fr.
Votre conseiller Les Valleuses : Directeurs D'agence - Charlotte Lheureux Clément SERVAIS-PICORD Carte T CPI76022024000000003. Et si c'était le moment de connaître la vraie valeur de votre bien ? Nous vous proposons une estimation personnalisée, rapide et totalement gratuite. Un projet en tête ? Contactez-nous, et faisons de votre projet une réalité !
Duplex
56 m²
1 250 €
3
11.11 %
Oui (9 lots)
Consommations énergétiques
Logement économe
315
Logement énergivore (kWhEP/m2/an)
Émissions de gaz à effet de serre
Faible émission de GES
10
Forte émission de GES(kgeqCO2/m2/an)
Contact Charlotte LHEUREUX
Contacter gratuitement à l'aide du formulaire ci-dessous.