Honoraires à la charge de l'acquéreur (Prix hors honoraires : 214900 euros).
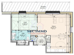
Découvrez ce magnifique appartement T2 de 57,06 m², niché dans un cadre de vie exceptionnel. Cet appartement allie élégance et fonctionnalité, offrant un espace de vie confortable et lumineux.
Imaginez-vous dans ce havre de paix, où chaque détail a été pensé pour votre bien-être. La pièce à vivre, baignée de lumière naturelle, s'ouvre sur une terrasse de 20 m², idéale pour des moments de détente en plein air. La cuisine équipée, moderne et pratique, est parfaite pour les amateurs de gastronomie.
La chambre, spacieuse et calme, vous garantit des nuits paisibles. La salle de bains, avec ses finitions soignées, est un véritable espace de bien-être. Un WC séparé complète cet appartement fonctionnel et bien agencé.
Cet appartement est bien plus qu'un simple logement, c'est un lieu où vous pourrez créer des souvenirs inoubliables. Ne manquez pas l'opportunité de visiter cette perle rare et de vous imaginer vivre dans ce cadre idyllique.
À proximité, vous trouverez plusieurs commodités pratiques pour faciliter votre quotidien, telles que des commerces de proximité, des écoles et des transports en commun.
Dans une copropriété de 47 lots. Aucune procédure n'est en cours. Non soumis au DPE. Les informations sur les risques auxquels ce bien est exposé sont disponibles sur le site Géorisques : georisques.gouv.fr.