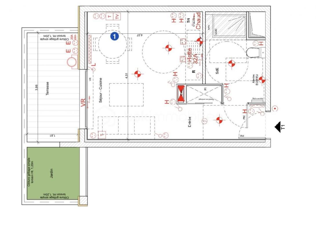
A vendre Charmant T2 de 25 m² avec terrasse couverte à deux pas de la plage !
Venez découvrir ce joli appartement T2 idéalement situé à seulement quelques mètres du sable et de la mer ! Parfait pour un pied-à-terre en bord de mer, il saura vous séduire par son agencement fonctionnel et sa superbe terrasse couverte de 11 m², idéale pour vos repas d'été ou vos moments de détente.
Emplacement privilégié à proximité immédiate de la plage et des commerces Avec ses 25 m² parfaitement optimisés et sa terrasse, cet appartement offre tout le confort nécessaire dans un cadre agréable et recherché.
Honoraires à la charge du vendeur. Classe énergie D, Classe climat B Montant estimé des dépenses annuelles d'énergie pour un usage standard : entre 632.00 et 856.00 sur les années 2021, 2022 et 2023 (abonnements compris). Les informations sur les risques auxquels ce bien est exposé sont disponibles sur le site Géorisques : georisques.gouv.fr.