Appartement T3 Lumineux et Moderne en dernier étage
Découvrez ce magnifique appartement T3 de 59 m², situé au 2ème et dernier étage d'un immeuble récent construit en 2019.
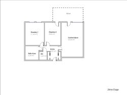
L'appartement comprend une entrée avec placard, deux chambres, une salle de bains, un WC séparé, un espace salon salle à manger et cuisine tout ouvert ainsi qu'un balcon NORD/EST.
Un garage double est vendu avec l'appartement. Normes/Accès PMR.
Chauffage au Gaz collectif + 3 climatisations réversible individuelles.
Situé à proximité de toutes les commodités, vous trouverez à moins de 10 minutes à pied un collège, une alimentation générale, plusieurs restaurants, un parc et jardin, ainsi que des médecins généralistes. La ligne de bus est également accessible en 5 minutes à pied, facilitant vos déplacements quotidiens.
Honoraires à la charge du vendeur.
Montant moyen annuel de la quote-part de charges courantes: 3 711,99 Nombre de lots : 215 (dont 124 lots d'habitation) Aucune procédure en cours menée sur le fondement des articles 29-1 A et 29-1 de la loi n° 65-557 du 10 juillet 1965 et de l'article L.615-6 du CCH.
Honoraires à la charge du vendeur. Dans une copropriété de 215 lots. Quote-part moyenne du budget prévisionnel 3 712 /an. Aucune procédure n'est en cours. Classe énergie C, Classe climat C Montant estimé des dépenses annuelles d'énergie pour un usage standard : entre 470.00 et 700.00 sur les années 2021, 2022 et 2023 (abonnements compris). Les informations sur les risques auxquels ce bien est exposé sont disponibles sur le site Géorisques : georisques.gouv.fr.
Votre conseiller JUND IMMOBILIER : Co-Gérant - Alexis JUND Carte T CPI67012024000000048 RCP 733300480001
59 m²
3 644 €
11 m²
3
2
1
1 (séparé)
2 sur 2
2019
1 (11 m²)
Oui
1
Oui
Oui (215 lots)
Consommations énergétiques
Logement économe
89
Logement énergivore (kWhEP/m2/an)
Émissions de gaz à effet de serre
Faible émission de GES
12
Forte émission de GES(kgeqCO2/m2/an)
Contact JUND IMMOBILIER
Contacter gratuitement à l'aide du formulaire ci-dessous.