Honoraires à la charge de l'acquéreur (Prix hors honoraires : 189953 euros).
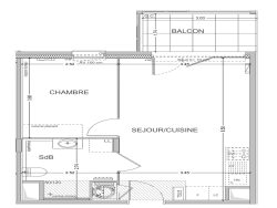
Vous souhaitez acquérir un bien neuf sur Istres avec de beaux espaces et un extérieur alors n'hésitez plus , chaque appartement dispose d'un espace extérieur privatif : loggia, balcon ou terrasse, pour profiter pleinement des vues dégagées sur la nature environnante. À quelques minutes de votre futur appartement, retrouvez toutes les commodités indispensables : écoles, commerces, équipements sportifs et culturels, transports en commun, ainsi que les plages et le centre historique d'Istres. Offrez-vous une nouvelle vie dans un cadre sécurisé, apaisant et résolument tourné vers la nature. Si vous êtes Primo excédant bénéficier des Frais de notaire offert, des intérêts intercalaires offert. T2 à partir de 189 000 avec 2 places de parking. Pour plus de renseignement contacter Gaëlle de l'agence Qoridor au 0660182607.
Dans une copropriété de 95 lots. Aucune procédure n'est en cours. Non soumis au DPE. Les informations sur les risques auxquels ce bien est exposé sont disponibles sur le site Géorisques : georisques.gouv.fr.