Honoraires à la charge de l'acquéreur (Prix hors honoraires : 245600 euros).
> T2 NEUF DERNIER ÉTAGE GRANDE TERRASSE LIVRAISON T4 2027 > La Queue-en-Brie Quartier du Vieux Village
Découvrez ce bel appartement 2 pièces en VEFA, situé au 3e et dernier étage d'une résidence neuve à l'architecture soignée, à proximité immédiate du coeur historique de La Queue-en-Brie.
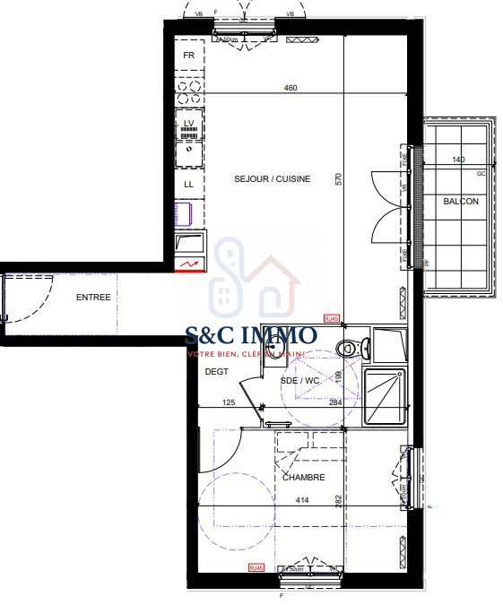
- Séjour / Cuisine : 22,20 m² - Chambre : 11,42 m² - Salle de bain : 6,50 m² > Surface habitable : 42,80 m²
> Terrasse de 13,50 m² (profondeur 1,60 m) orientée Nord-Est, offrant une vue dégagée sur la cour intérieure de la résidence.
> Localisation idéale :
Situé en limite du vieux village, à deux pas des commerces, restaurants, écoles (maternelles, élémentaires, collège), et à proximité des parcs des Marmousets. L'accès aux axes rapides est facilité (N4 / N104), et la gare RER E de Pontault-Combault est accessible en 10 minutes en voiture, permettant de rejoindre Paris HaussmannSaint-Lazare en environ 35 minutes.
> Un cadre de vie paisible, parfait équilibre entre ville et campagne, à seulement quelques minutes des grands pôles urbains.
> Idéal pour un primo-accédant ou un investissement patrimonial. > Nombreux lots encore disponibles dans la résidence (et ses alentours) : du T2 à la maison individuelle 5 pièces.
Contactez Félix SOUMARMON Les Ruches Immobilier & Conseils Magny le Hongre
42.87 m²
5 729 €
25 m²
2
1
1
3
Est
Nord
Oui
1
Oui (64 lots)
Contact Félix Soumarmon
Contacter gratuitement à l'aide du formulaire ci-dessous.