Honoraires à la charge de l'acquéreur (Prix hors honoraires : 113200 euros).
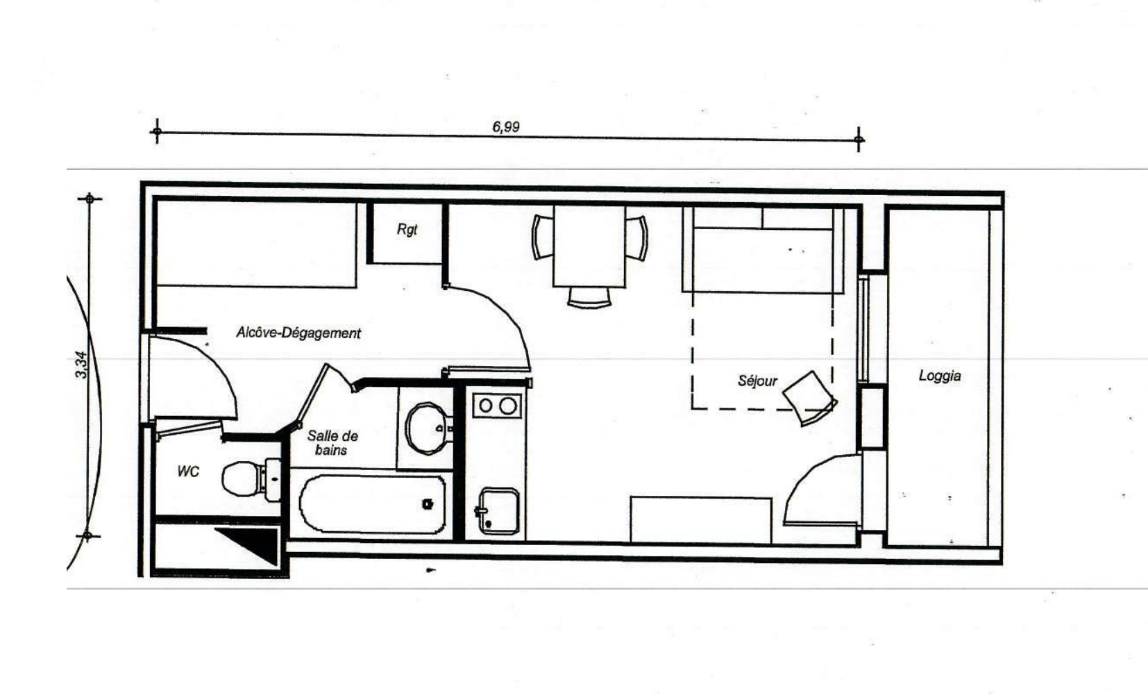
Charmant studio traversant donnant de chaque côté sur une cour et donc parfaitement au calme, situé au 2 ème étage d'un immeuble ancien à seulement 100 m de la place de Verdun. Il se compose d'une pièce de vie avec cuisine ouverte et une salle d'eau avec WC. Ses deux fenêtres en font un appartement très clair et louable facilement !
Honoraires inclus de 6.01% TTC à la charge de l'acquéreur. Prix hors honoraires 113 200 . Dans une copropriété de 10 lots. Aucune procédure n'est en cours. Classe énergie E, Classe climat B Montant estimé des dépenses annuelles d'énergie pour un usage standard : entre 460.00 et 780.00 sur les années 2021, 2022 et 2023 (abonnements compris). Les informations sur les risques auxquels ce bien est exposé sont disponibles sur le site Géorisques : georisques.gouv.fr.
17 m²
7 059 €
1
1
1
2 sur 3
6.01 %
Oui
1900
Oui (10 lots)
Consommations énergétiques
Logement économe
377
Logement énergivore (kWhEP/m2/an)
Émissions de gaz à effet de serre
Faible émission de GES
11
Forte émission de GES(kgeqCO2/m2/an)
Contact AD IMMOBILIER
Contacter gratuitement à l'aide du formulaire ci-dessous.