? Coup de coeur : T4 avec Jardin Privatif (100 m²) Le Bouscat, Proximité Bordeaux Le luxe du calme et de la verdure aux portes de Bordeaux
Situé au 14 rue Victor Hugo, au sein d'une résidence de standing (2021), découvrez ce magnifique appartement T4 de 83 m² alliant modernité, confort thermique (normes BBC) et vie en extérieur
? Un cadre de vie exceptionnel pour votre famille
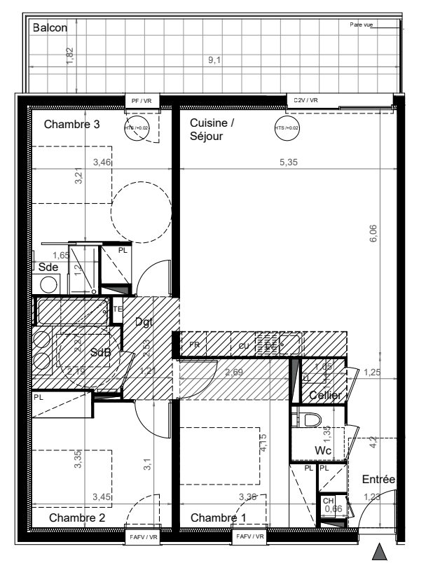
Dès l'entrée, vous serez séduits par une pièce de vie lumineuse avec cuisine ouverte, intégralement équipée et pensée pour la convivialité. Ce séjour s'ouvre sur un véritable écrin de verdure : un jardin clos et arboré de 100 m², agrémenté de deux terrasses. Un cellier extérieur privatif vient compléter cet espace pour un rangement optimal
? Côté nuit et prestations 3 chambres spacieuses et confortables. Une salle de bains complète offrant à la fois douche et baignoire. WC séparé et cellier intérieur pour plus de praticité. Avec possibilité d'acquérir une place de parking sécurisée en sous-sol pour (15 000 )
? Emplacement stratégique au Bouscat
Profitez d'un quartier résidentiel calme et recherché : À deux pas : Parc arboré, crèche et écoles pour vos enfants. Commodités : Commerces de proximité et accès direct au centre-ville de Bordeaux via le Tramway
? Les points forts techniques : Construction récente (2021) : Garantie décennale et isolation haute performance (faibles factures d'énergie). Charges maîtrisées : Seulement 100 / mois. Chauffage : Gaz individuel.
Fiche technique : Surface : 83 m² Habitable Extérieur : 100 m² de jardin + Terrasses Stationnement : possibilité d'avoir une place de parking en sous-sol sécurisé DPE : B
? Adresse : 14 rue Victor Hugo, 33110 Le Bouscat
? Contactez-nous dès aujourd'hui pour organiser une présentation personnalisée et découvrir ce bien
Honoraires à la charge du vendeur. Dans une copropriété de 66 lots. Aucune procédure n'est en cours. Classe énergie B, Classe climat B Montant estimé des dépenses annuelles d'énergie pour un usage standard : entre 494.00 et 668.00 sur les années 2021, 2022 et 2023 (abonnements compris). Les informations sur les risques auxquels ce bien est exposé sont disponibles sur le site Géorisques : georisques.gouv.fr.
82 m²
5 305 €
4
3
1
2 (séparés)
105.00 € / mois
Oui
2021
Sud
Oui
1
2
Oui
Oui (66 lots)
Consommations énergétiques
Logement économe
50
Logement énergivore (kWhEP/m2/an)
Émissions de gaz à effet de serre
Faible émission de GES
9
Forte émission de GES(kgeqCO2/m2/an)
Contact AGENCE S'ABSTENIR
Contacter gratuitement à l'aide du formulaire ci-dessous.