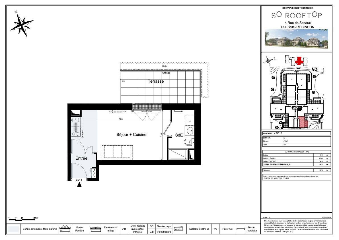
L'agence de KERANGAT Immobilier à Sceaux vous propose : Au bas du PLESSIS ROBINSON, à 8 mn de la gare RER de ROBINSON et des commerces qui l'entourent ce studio de 34 m² au calme, au 1 er étage sur l'arrière, exposé Ouest se compose : de l'entrée avec penderie, un séjour parqueté avec grand placard-penderie, cuisine équipée (ouvrable), salle de bains avec WC. Cave en sous-sol. Valeur locative 789 charges comprise.
Vous pouvez retrouver nos annonces : www.dekerangatimmo.com
Honoraires à la charge du vendeur. Dans une copropriété de 20 lots. Quote-part moyenne du budget prévisionnel 163 /an. Aucune procédure n'est en cours. Classe énergie D, Classe climat B Montant moyen estimé des dépenses annuelles d'énergie pour un usage standard, établi à partir des prix de l'énergie de l'année 2022 : entre 530.00 et 760.00 . Les informations sur les risques auxquels ce bien est exposé sont disponibles sur le site Géorisques : georisques.gouv.fr.
Carte pro. CP192012016000013919
33.96 m²
6 213 €
20.00 m²
1
1
25/08/2025
188.00 € / mois
1998
Ouest
Oui
Oui
Oui (20 lots)
Consommations énergétiques
Logement économe
230
Logement énergivore (kWhEP/m2/an)
Émissions de gaz à effet de serre
Faible émission de GES
7
Forte émission de GES(kgeqCO2/m2/an)
Contact de Kerangat Sceaux
Contacter gratuitement à l'aide du formulaire ci-dessous.