Honoraires à la charge de l'acquéreur (Prix hors honoraires : 364000 euros).
Au Plessis-Trévise / Marbeau-Coeuilly AGENTYS vous propose ce superbe appartement T4 vous offrant un cadre de vie exceptionnel à proximité de toutes les commodités.
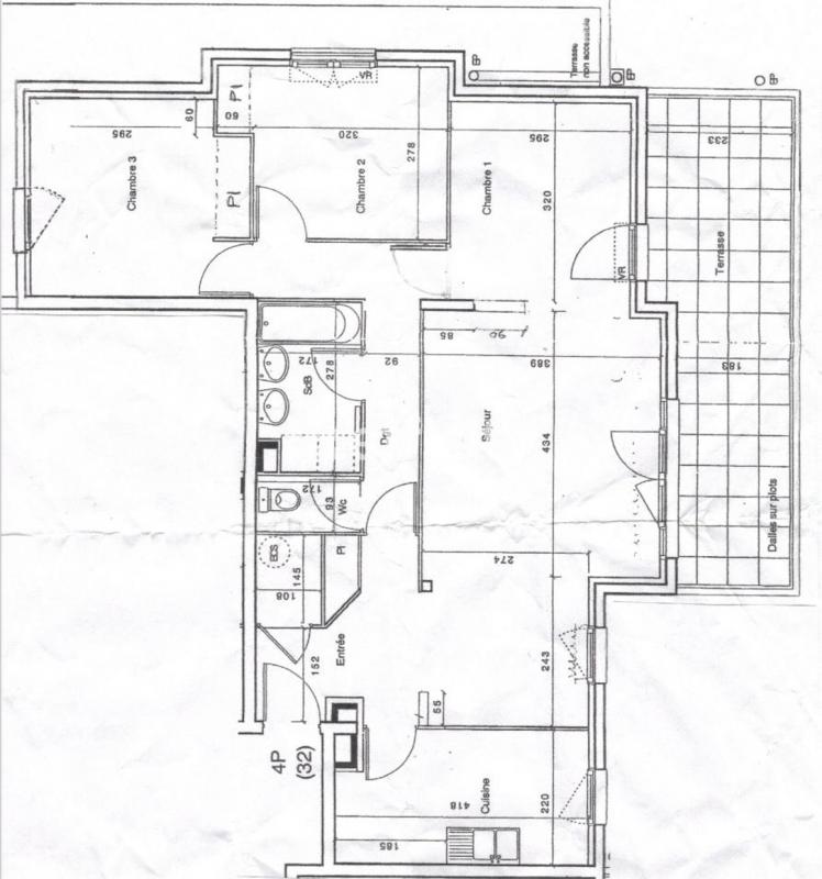
Dès l'entrée, vous serez charmé par son spacieux et lumineux séjour ouvrant sur une cuisine américaine, moderne et entièrement équipée donnant sur un balcon.
L'appartement dispose également de trois chambres dont une suite parentale avec sa salle de bains. La salle d'eau et les toilettes complètent ce bien.
De plus, deux places de stationnement sont incluses pour votre véhicule. Nous sommes convaincus que cet appartement sera votre coup de coeur.
Alors, n'hésitez plus et contactez-nous dès maintenant pour organiser une visite ! AGENTYS, votre partenaire immobilier de confiance.
Dans une copropriété de 10 lots. Aucune procédure n'est en cours. Classe énergie C, Classe climat A Montant moyen estimé des dépenses annuelles d'énergie pour un usage standard, établi à partir des prix de l'énergie de l'année 2021 : entre 1537.00 et 1537.00 . Les informations sur les risques auxquels ce bien est exposé sont disponibles sur le site Géorisques : georisques.gouv.fr.