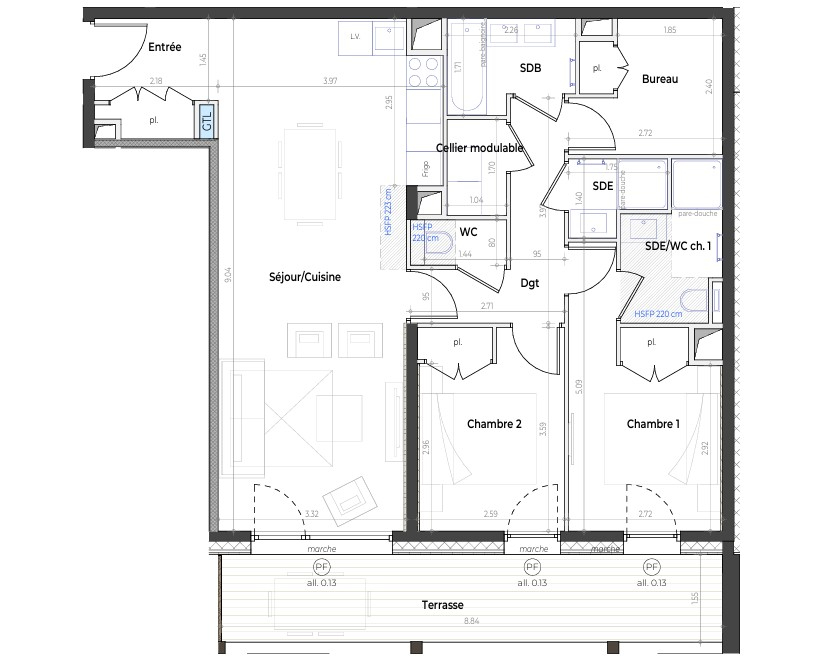
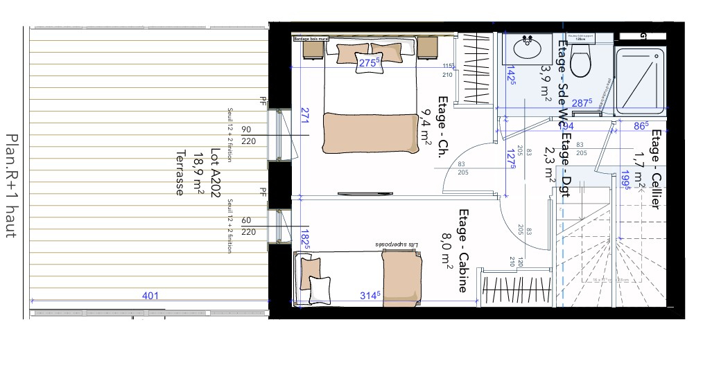
Découvrez ce magnifique appartement T3 de 67,70 m², situé dans un cadre de vie exceptionnel. Avec ses 73 m² de surface au sol, cet appartement offre un espace de vie généreux et lumineux, idéal pour une famille ou un couple en quête de confort et de tranquillité.
Imaginez-vous dans un séjour spacieux de 35 m², baigné de lumière naturelle, parfait pour recevoir vos proches ou vous détendre après une longue journée. Les deux chambres, conçues pour votre bien-être, vous offrent un havre de paix où vous pourrez vous reposer et rêver.
Cet appartement non meublé vous permet de laisser libre cours à votre créativité et de personnaliser chaque pièce selon vos goûts et vos besoins. La salle de bains et les WC séparés complètent parfaitement cet espace de vie fonctionnel et élégant.
Ne manquez pas cette opportunité unique de vivre dans un environnement privilégié. Contactez-nous dès maintenant pour organiser une visite et laissez-vous séduire par ce bijou immobilier.
Commodités à proximité : À 5 minutes à pied, vous trouverez plusieurs commerces de proximité, une école primaire, et un parc pour des moments de détente en famille.
Honoraires à la charge du vendeur. Dans une copropriété de 11 lots. Quote-part moyenne du budget prévisionnel 2 400 /an. Aucune procédure n'est en cours. Non soumis au DPE. Les informations sur les risques auxquels ce bien est exposé sont disponibles sur le site Géorisques : georisques.gouv.fr.