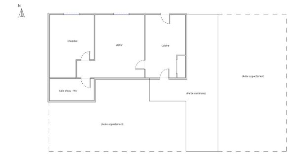
Fütterer Property vous présente: situé au coeur de Lézignan, dans une petite copropriété calme et bien entretenue de seulement 5 appartements, découvrez ce charmant T2 au 3? étage. D'une surface agréable, cet appartement se compose d'un séjour lumineux, d'une cuisine, d'une chambre, ainsi que d'une salle d'eau avec toilettes. Son agencement optimisé offre un cadre de vie confortable et pratique. Ce bien constitue une excellente opportunité pour un investissement locatif, avec un bon rendement grâce à sa localisation et à la forte demande locative du secteur.
N'hésitez pas à contacter Stephan, pour organiser une visite ou obtenir plus d'informations, Agent commercial immatriculé au RSAC de Narbonne sous le numéro 514 778 943.
Honoraires à la charge du vendeur. Dans une copropriété de 6 lots. Aucune procédure n'est en cours. Classe énergie D, Classe climat A Montant estimé des dépenses annuelles d'énergie pour un usage standard : entre 998.00 et 1350.00 sur les années 2021, 2022 et 2023 (abonnements compris). Les informations sur les risques auxquels ce bien est exposé sont disponibles sur le site Géorisques : georisques.gouv.fr.
Votre conseiller Fütterer Property : Stephan DUMON Agent commercial (Entreprise individuelle) RSAC 514 778 943 RCP NARBONNE. Retrouvez l'ensemble de nos biens: https://www.futtererproperty.com/
37 m²
1 243 €
17 m²
2
1
1
1
3 sur 3
1900
Oui (6 lots)
Consommations énergétiques
Logement économe
189
Logement énergivore (kWhEP/m2/an)
Émissions de gaz à effet de serre
Faible émission de GES
6
Forte émission de GES(kgeqCO2/m2/an)
Contact Stephan DUMON
Contacter gratuitement à l'aide du formulaire ci-dessous.