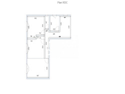
Appartement à rénover à Libourne quartier Épinette ! 59m² à rénover possibilité d'y faire un grand T2 ou un T3. Il s'agit d'un rez-de-chaussée dans une copropriété (en cours de création) de 3 appartements.
Actuellement composé d'une grande entrée, d'une salle d'eau, d'un WC indépendant et de 3 chambres.
Une place de parking et un jardin complète cet ensemble.
A visiter sans tarder.
Honoraires à la charge du vendeur. Dans une copropriété de 6 lots. Aucune procédure n'est en cours. Classe énergie E, Classe climat D Montant estimé des dépenses annuelles d'énergie pour un usage standard : entre 1.00 et 1.00 sur les années 2021, 2022 et 2023 (abonnements compris). Les informations sur les risques auxquels ce bien est exposé sont disponibles sur le site Géorisques : georisques.gouv.fr.