Honoraires à la charge de l'acquéreur (Prix hors honoraires : 450000 euros).
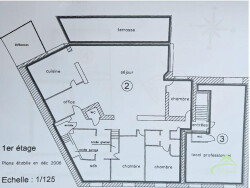
Au coeur de Limoges, au fond d'une impasse paisible, superbe loft dans une petite copropriété de deux lots. Au RDC: grand hall d'entrée privatif avec rangements. Garage et cave. Au 1er étage: grande pièce de vie lumineuse de 68 m2 avec accès terrasse de 30 m2 et vue dégagée. Grande cuisine indépendante de 21 m2 et buanderie. 3 belles chambres dont 2 avec dressing. 2 salles d'eau dont une avec baignoire, 2 toilettes. Au même niveau, espace indépendant avec toilettes, de plus de 55 m2 avec porte coulissante pour 2 chambres supplémentaires, espace professionnel ou location. Combles aménagés. Double vitrage, chauffage avec pompe à chaleur AIr/Air de 2007, volets roulants électriques. Posez dès maintenant vos valises dans cet incroyable loft totalement unique avec accès piéton à tous les commerces!
Honoraires inclus de 4% TTC à la charge de l'acquéreur. Prix hors honoraires 450 000 . Dans une copropriété de 2 lots. Aucune procédure n'est en cours. Classe énergie C, Classe climat A Montant moyen estimé des dépenses annuelles d'énergie pour un usage standard, établi à partir des prix de l'énergie de l'année 2025 : entre 3447.00 et 4663.00 . Les informations sur les risques auxquels ce bien est exposé sont disponibles sur le site Géorisques : georisques.gouv.fr.