À vendre Superbe T2 avec terrasse et parking Quartier en plein essor, à deux pas du Pont Chaban-Delmas !
Situé dans un quartier entièrement neuf, à la limite de Bordeaux , cet appartement T2 est une véritable opportunité pour ceux qui recherchent confort, modernité et accessibilité.
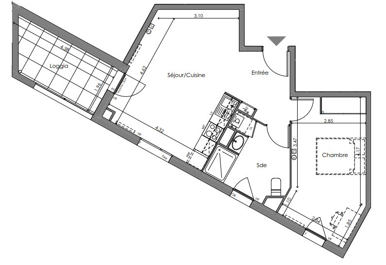
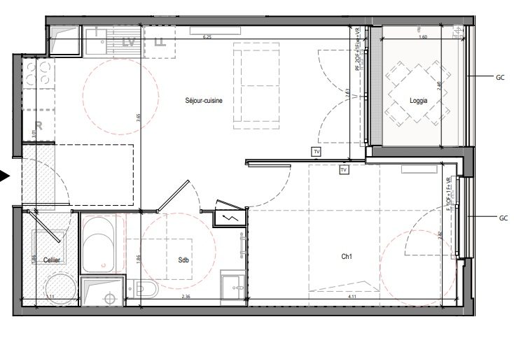
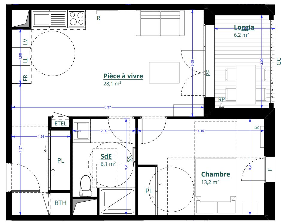
Les atouts de ce bien : ? Emplacement privilégié : à quelques minutes du Pont Chaban-Delmas et des quais, offrant un cadre de vie dynamique et agréable. ? Résidence récente et sécurisée : prestations modernes et cadre de vie paisible. ? Grand séjour lumineux ouvrant sur une belle terrasse, idéale pour profiter des beaux jours. ? Cuisine équipée et fonctionnelle. ? Chambre spacieuse. ? Place de parking privative pour un confort absolu. ? Proximité immédiate des commerces, transports (tramway, bus), écoles et accès rapides aux axes routiers.
Un bien parfait pour un premier achat ou un investissement locatif performant !
Honoraires à la charge du vendeur. Dans une copropriété de 134 lots. Aucune procédure n'est en cours. DPE en cours. Les informations sur les risques auxquels ce bien est exposé sont disponibles sur le site Géorisques : georisques.gouv.fr.
41.99 m²
4 739 €
13 m²
23 m²
2
1
1
1
3
Oui
2021
1 (13 m²)
1
Oui (134 lots)
Consommations énergétiques
Logement économe
47
Logement énergivore (kWhEP/m2/an)
Émissions de gaz à effet de serre
Faible émission de GES
3
Forte émission de GES(kgeqCO2/m2/an)
Contact L'agence by Tolmar
Contacter gratuitement à l'aide du formulaire ci-dessous.