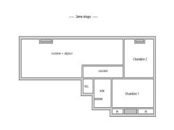
Immosquare Lyon vous propose en Exclusivité, dans une résidence bien tenue, venez découvrir ce T4 d'environ 68.24m² + cellier + balcon + cave. LIEN VISITE VIRTUELLE disponible sur notre site internet ou sur demande. Il se compose d'une entrée, un séjour avec accès au balcon, une cuisine équipée avec accès à un cellier, 3 chambres avec chacune un rangement, une salle de bains avec WC et une cave en S/Sol! Les plus : appartement rénové récemment, traversant, chauffage individuel, double vitrage... Contact : Anthony AVIAS : 006 18 78 55 89. Loi ALUR : Soumis au régime de copropriété, Nombre de lots = 28, Quote-part annuelle des charges environ 1078.15 Euros (comprenant l'entretien de la copropriété et l'eau froide avec un compteur). Les informations sur les risques auxquels ce bien est exposé sont disponibles sur le site Géorisques.
Honoraires à la charge du vendeur. Dans une copropriété de 28 lots. Quote-part moyenne du budget prévisionnel 1 078 /an. Aucune procédure n'est en cours. Classe énergie E, Classe climat B Montant moyen estimé des dépenses annuelles d'énergie pour un usage standard, établi à partir des prix de l'énergie de l'année 2021 : entre 1430.00 et 1970.00 . Les informations sur les risques auxquels ce bien est exposé sont disponibles sur le site Géorisques : georisques.gouv.fr.
68.24 m²
2 858 €
2 m²
16 m²
4
3
1
1
1 sur 4
89.00 € / mois
1956
Est
Ouest
1 (2 m²)
Oui
Oui (28 lots)
Consommations énergétiques
Logement économe
277
Logement énergivore (kWhEP/m2/an)
Émissions de gaz à effet de serre
Faible émission de GES
9
Forte émission de GES(kgeqCO2/m2/an)
Contact IMMOSQUARE LYON
Contacter gratuitement à l'aide du formulaire ci-dessous.