Lo????calisation : 99 avenue Félix Faure, Lyon 3?Toutes commodités à proximité.Bus : lignes 25, C7, C9, C11, C13, C25.Tram : T4 station Archives départementales.Métro : stations Garibaldi et Saxe-Gambetta (lignes B et D).
L'immeuble : Édifié en 1979, immeuble de 7 étages avec sous-sol.Copropriété composée de 47 appartements.Voté lors de la dernière assemblée générale, à la charge des propriétaires : rénovation du système de production de chauffage et d'ECS, raccordement au réseau de chaleur urbain, ainsi qu'un DPE collectif en cours.Parties communes en bon état : peinture des cages d'escalier, piliers dans les garages et portes de secours réalisés en 2022. Amiante détecté sur les gaines de ventilation, et sur les portes palieres ascenseur.
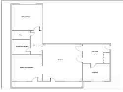
L'appartement : Situé au 2? étage, appartement de 76 m² loi Carrez avec balcon de 7,5 m².Il se compose d'une entrée, d'une cuisine indépendante de 10 m² (sans possibilité d'ouverture sur le séjour), d'une pièce de vie de 25 m² avec accès au balcon orienté sud côté rue, d'une salle à manger (anciennement une chambre) de 13,8 m², d'une chambre de 12,3 m², d'une salle de bains et de WC indépendants. Amiante détecté sur les parois verticales des murs intérieurs et extérieurs de la loggia. Chauffage collectif au gaz.Fenêtres et baies vitrées en double vitrage, mais anciennes.Vendu avec un garage fermé et une cave, inclus dans le prix de vente.
Travaux à prévoir : remplacement des menuiseries, réfection des sols, rénovation complète de la cuisine et de la salle de bains, peintures, reprise totale de l'électricité.
Données techniques : Menuiseries bois double vitrage (anciennes).Volets roulants manuels.Charges : environ 225 /mois (entretien des parties communes, chauffage, eau froide).Taxe foncière : 1 355 .
Honoraires à la charge du vendeur. Dans une copropriété de 157 lots. Quote-part moyenne du budget prévisionnel 2 660 /an. Aucune procédure n'est en cours. Classe énergie D, Classe climat D Montant estimé des dépenses annuelles d'énergie pour un usage standard : entre 1180.00 et 1650.00 sur les années 2021, 2022 et 2023 (abonnements compris). Les informations sur les risques auxquels ce bien est exposé sont disponibles sur le site Géorisques : georisques.gouv.fr.
76 m²
3 421 €
25 m²
3
2
1
1 (séparé)
2 sur 7
225.00 € / mois
1979
Sud
Ouest
8
Oui
Oui
1
Oui (157 lots)
Consommations énergétiques
Logement économe
186
Logement énergivore (kWhEP/m2/an)
Émissions de gaz à effet de serre
Faible émission de GES
36
Forte émission de GES(kgeqCO2/m2/an)
Contact Mathieu GUERIN
Contacter gratuitement à l'aide du formulaire ci-dessous.