Belle opportunité d'investissement que ce T2 bis de 42,15 m² carrez (et 68,51 m² au sol) situé au coeur de Montchat au sein d'une résidence calme et bien entretenue.
Situé au 8ème et dernier étage avec ascenseur, ce bien en « sous pente » orienté Est-Ouest, s'organise autour de différents espaces aménageables et pour partie ouvrables entre eux.
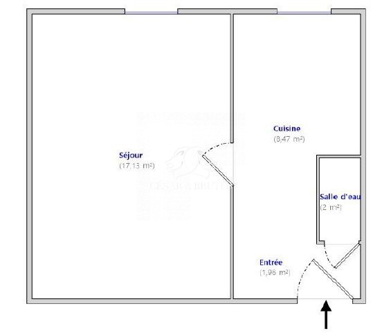
Vous disposerez entre autres, d'une pièce de vie avec velux et fenestron en « chien assis » côté Est sur les jardins intérieurs, d'une cuisine avec velux, placards muraux et alcôve en sous pente, d'un espace chambre avec vélux, fenestron et alcôve, d'une salle d'eau avec douche et WC.
Emplacement privilégié au coeur de Montchat en proximité immédiate des commerces (Cours Dr Long), des transports (Bus, Métro, Tram) des écoles (Emile Cohl, CFA, Ecole des métiers), des Hôpitaux et du parc Bazin.
Cet appartement nécessite des travaux de rénovation y compris énergétique, mais offre de belles possibilités d'aménagement. IMPORTANT : La réfection du toit de l'immeuble incluant une isolation par l'extérieur a été voté.
Honoraires à la charge du vendeur
Vous souhaitez en savoir plus ou visiter ce bien ? Contactez Philippe LEVACHER
Honoraires à la charge du vendeur. Dans une copropriété de 204 lots. Quote-part moyenne du budget prévisionnel 770 /an. Aucune procédure n'est en cours. Logement à consommation énergétique excessive : Classe énergie G, Classe climat C Montant moyen estimé des dépenses annuelles d'énergie pour un usage standard, établi à partir des prix de l'énergie de l'année 2022 : entre 2320.00 et 3170.00 . Les informations sur les risques auxquels ce bien est exposé sont disponibles sur le site Géorisques : georisques.gouv.fr.
Votre conseiller CESAR ET BRUTUS : Agent immobilier - Philippe LEVACHER Carte T CPI 6901 2019 000 043 692