Honoraires à la charge de l'acquéreur (Prix hors honoraires : 441200 euros).
? Lyon 3ème | Lacassagne-Montchat : Le calme d'un jardin, l'énergie de la ville
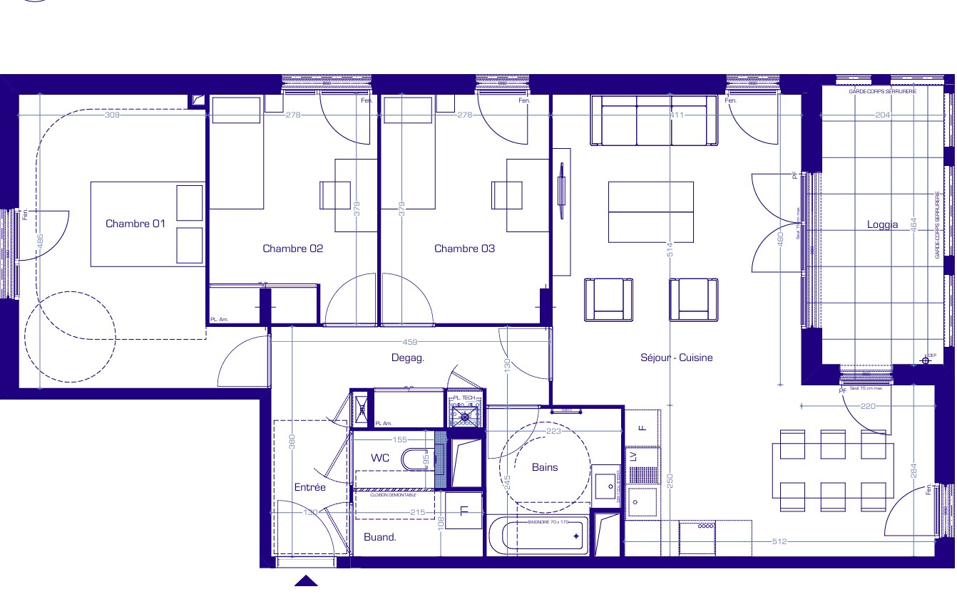
Idéalement situé dans le secteur prisé de Lacassagne-Montchat, cet appartement T4 de 84 m² offre un cadre de vie rare. Imaginez : le confort d'une copropriété récente combiné au plaisir d'un espace extérieur privatif de 75 m².
? Les points forts du bien Espace de vie : Une grande pièce de vie lumineuse avec cuisine équipée, s'ouvrant directement sur la terrasse pour vos déjeuners au soleil. Côté nuit : 3 belles chambres, dont une avec un accès direct au jardin (parfait pour un réveil en douceur). Confort : Une salle de bains fonctionnelle et un agencement optimisé. Le 'Plus' : Un garage fermé en sous-sol est disponible (en sus, 30 000 ). ? Une localisation stratégique Oubliez les compromis. Ici, tout se fait à pied ou à vélo : Transports : Gare Part-Dieu à quelques minutes, accès rapide aux réseaux TCL. Vie de quartier : Crèches, écoles et parcs à deux pas. Ambiance : Le secteur Montchat est réputé pour son esprit 'village' et sa tranquillité. Pour plus d'informations, je me tiens à votre disposition. Dossier complet sur demande.
Honoraires inclus de 4.26% TTC à la charge de l'acquéreur. Prix hors honoraires 441 200 . Dans une copropriété de 74 lots. Quote-part moyenne du budget prévisionnel 1 828 /an. Aucune procédure n'est en cours. Classe énergie B, Classe climat A Montant moyen estimé des dépenses annuelles d'énergie pour un usage standard, établi à partir des prix de l'énergie de l'année 2021 : entre 900.00 et 1200.00 . Les informations sur les risques auxquels ce bien est exposé sont disponibles sur le site Géorisques : georisques.gouv.fr.