Chez Le Beaurepere Agency, appartement à vendre 2P 44m² dans une résidence située au sein de l'extension du nouveau quartier Euromed dans le 15ème arrondissement de Marseille, Proche de La Joliette (Les Terrasses du port, les Docks, Le Silo, Le Cinéma Pathé...) Métro à 600m et Tram à 200m.
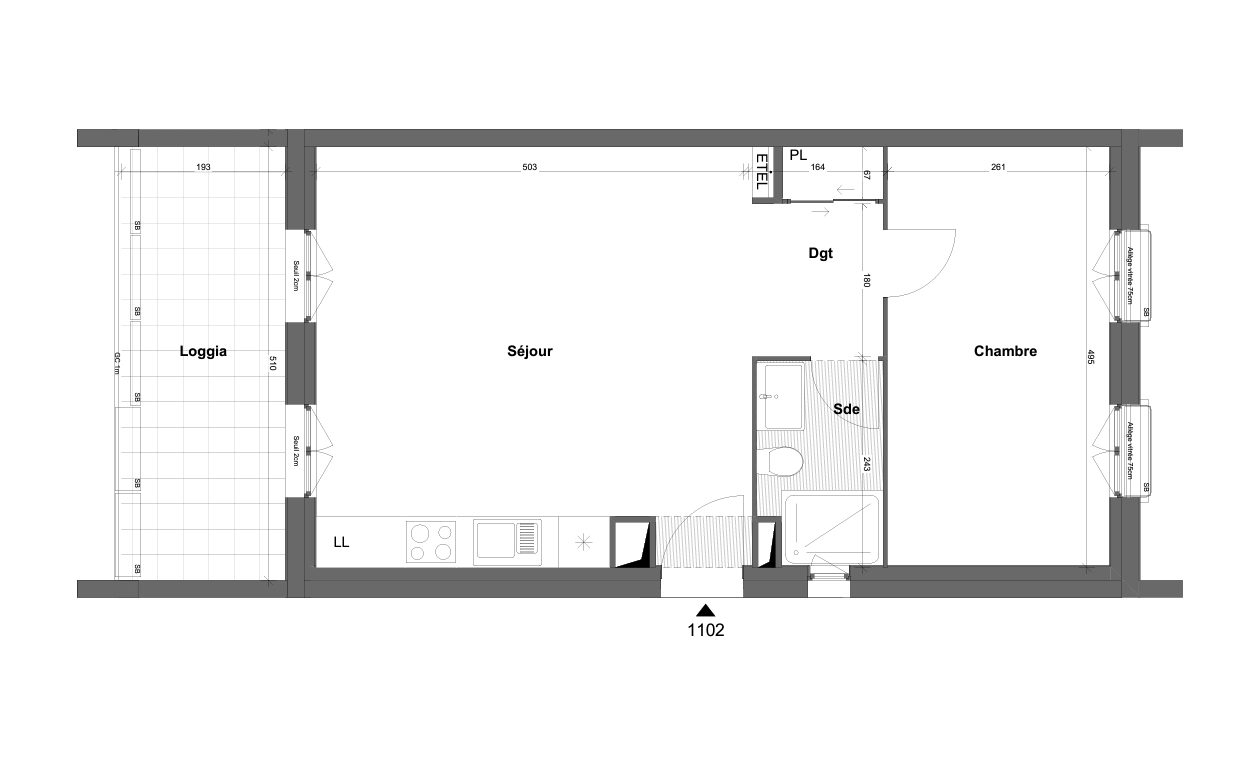
? Appartement traversant de 2 pièces et de 44m² (carrez) composé d'une entrée avec dressing, d'un beau séjour-cuisine, d'une chambre, ainsi que d'une salle d'eau entièrement équipée (meuble vasque, douche, sèche serviette) avec WC. Une terrasse vient compléter ce bien.
Pour votre confort: résidence fermée, visiophone, ascenseur, système de rafraîchissement d'air et chauffage par air pulsé, toit terrasse partagée... Cet appartement ne nécessite aucun travaux à prévoir.
La résidence flambant neuve est composée de 128 lots en copropriété, elle est en RE2020 (avec isolation phonique et thermique selon dernière réglementation en vigueur). Le bien est sous garantie décennale et biennale pour les éléments d'équipement. Nous contacter pour en savoir plus.
DPE 51 kWhEP/m².an et 6CO/m².an en cours. Pas de procédure ni de litige en cours sur la copropriété. Charges annuelles courantes prévisionnelles : 1032
PRIX 166 163 Prix en TVA réduite sous conditions. Honoraires à charge du vendeur
Bénéficier de : financement jusqu'à 40% sans intérêts sous conditions financement forfaitaire à 1,5% d'intérêts sous conditions déduction fiscale jusqu'à 1,5% de vos impôts exonérations partielle de la taxe foncière pendant 2ans
Concernant la livraison et remise des clés : nous contacter
Pour en savoir plus, Mme Sophia SCHERRER (EI) au O612 8134 48.
INFORMATIONS LÉGALES: Le barème des honoraires agence, et les mentions légales complètes sont disponibles sur notre site internet dans la rubrique /nos honoraires/. SAS Le Beaurepere Agency au capital de 1000 située 65 CHE DE ST MENET AUX ACCATES 13011 Marseille SIRET 98367596800017 TVA FR20983675968 Carte pro CPI 1310 2024 000 000 081 délivrée par Marseille-Provence Palais de la Bourse, 9 La Canebière 13001 Marseille La société ne doit recevoir ni détenir d'autres fonds, effets ou valeurs que ceux représentatifs de sa rémunération ou de sa commission RCP RD01929278R auprès de AIG Europe SA 35 D Avenue J.F.Kennedy, L-1855, Luxembourg LUXEMBOURG Annonce relative au mandat de vente N°7. L'annonce immobilière a été rédigée sous la responsabilité éditoriale de Sophia SCHERRER EI, Agent Commercial mandataire en immobilier immatriculé au Registre Spécial des Agents Commerciaux (RSAC) du Tribunal de Commerce de MARSEILLE, sous le numéro 823110739.
Honoraires à la charge du vendeur. Dans une copropriété de 128 lots. Aucune procédure n'est en cours. Classe énergie B, Classe climat B Montant moyen estimé des dépenses annuelles d'énergie pour un usage standard, établi à partir des prix de l'énergie de l'année 2024 : entre 930.00 et 1032.00 . Les informations sur les risques auxquels ce bien est exposé sont disponibles sur le site Géorisques : georisques.gouv.fr.