Honoraires à la charge de l'acquéreur (Prix hors honoraires : 265000 euros).
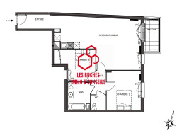
Découvrez un appartement T3 lumineux et spacieux de 71 m², parfait pour une vie épanouie. Ce havre de paix allie confort et élégance, avec un séjour spacieux, une cuisine ouverte, deux chambres dont une suite parentale, une salle de bains moderne et un WC indépendant. Situé dans un quartier dynamique, cet appartement est proche de toutes les commodités. À 5 minutes à pied, vous trouverez une maternelle, une école élémentaire, une épicerie, un médecin généraliste, deux restaurants et les bus. Trois parcs et jardins sont accessibles en 5 minutes en voiture, et un hôpital est à 10 minutes en voiture. Deux crèches sont également disponibles à 15 minutes à pied. Éligible à la fibre, cet appartement offre une connexion internet haut débit. Ne manquez pas l'opportunité de vivre dans un cadre agréable et bien desservi. Contactez-nous, et laissez-vous séduire par ce bijou immobilier.
71 m²
3 732 €
3
2
1
1 (séparé)
Oui (24 lots)
Contact Mehdi Zoubir
Contacter gratuitement à l'aide du formulaire ci-dessous.