Honoraires à la charge de l'acquéreur (Prix hors honoraires : 176383 euros).
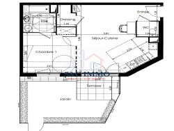
Découvrez ce magnifique appartement T2 neuf, construit en 2027, offrant un cadre de vie exceptionnel et une luminosité optimale. Avec ses 47.85 m² de surface habitable, cet appartement est parfait pour ceux qui recherchent un équilibre entre confort et modernité.
Imaginez-vous dans un espace où chaque détail a été pensé pour votre bien-être. La cuisine ouverte s'intègre harmonieusement dans le salon, créant une ambiance chaleureuse et conviviale. La terrasse de 5 m² vous invite à profiter des doux moments en plein air, tandis que le jardin de 18 m² offre un havre de paix pour vous détendre ou organiser des repas en famille ou entre amis.
Cet appartement dispose d'une salle de bains moderne et d'un WC indépendant, garantissant intimité et confort. La chambre spacieuse et lumineuse vous promet des nuits paisibles.
Situé dans un quartier dynamique, vous bénéficierez de la proximité de plusieurs commodités. À seulement 5 minutes à pied, vous trouverez une maternelle et des écoles élémentaires, ainsi qu'un arrêt de bus. En 15 minutes à pied, vous aurez accès à plusieurs crèches, collèges, restaurants, parcs et jardins, ainsi qu'à des magasins d'alimentation générale et des médecins généralistes. Pour vos déplacements plus longs, un hôpital est accessible en 10 minutes en voiture.
Éligible à l'internet haut débit et à la fibre, cet appartement est prêt à accueillir vos besoins technologiques. Ne manquez pas cette opportunité de vivre dans un environnement moderne et bien desservi.
Contactez-nous dès maintenant et laissez-vous séduire par ce bijou immobilier.
Dans une copropriété de 44 lots. Aucune procédure n'est en cours. Non soumis au DPE. Les informations sur les risques auxquels ce bien est exposé sont disponibles sur le site Géorisques : georisques.gouv.fr.